- Home
- Residential
- Row/Townhouse
- #101 3550 45 Street SW, Calgary, Alberta, T3E 3V2
#101 3550 45 Street SW, Calgary, Alberta, T3E 3V2
Glenbrook, Calgary
- A2282731
- MLS Number
- 2
- Bedrooms
- 3
- Bathrooms
- 545.75
- sqft
- 2025
- Year Built
Property Description
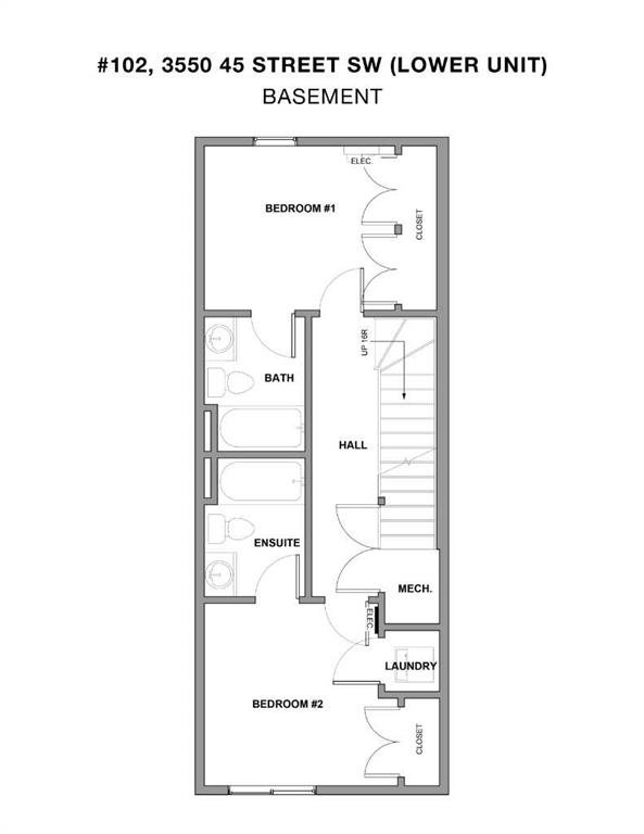
*VISIT MULTIMEDIA LINK FOR FULL DETAILS & FLOORPLANS!* BRAND NEW TOWNHOME PROJECT COMING SPRING 2026 TO GLENBROOK! With 5 upper-level units, and 5 lower-level units, this modern townhome project is sure to impress, with an unbeatable inner-city location! This lower-level unit boasts a sunny main floor plus a FULLY FINISHED BASEMENT totalling nearly 1,000 sq ft of developed living space, with 2 beds & 2.5 baths. Accessible by a private entrance facing the street, the sunny main floor showcases low-maintenance luxury vinyl plank (LVP) flooring, and an open-concept living space with large windows. The modern kitchen features 2-tone slab-style cabinetry, quartz counters, and a Samsung stainless steel appliance package including a French-door refrigerator and ceramic top stove. The adjacent dining room is perfect for family meals and entertaining, while the living room’s oversized window fills the space with natural light. A stylish 2-pc powder room completes this level. Downstairs, 2 bedrooms and 2 full bathrooms reside. Each bathroom boasts custom cabinetry, quartz counters, undermount sinks, and tiled tub/showers. Completing the basement is a convenient laundry closet. Durable and stylish, the exterior features Hardie Board and Smart Board detailing, and brushed concrete steps and walks. Located in the heart of the sought-after SW inner-city community of Glenbrook, these brand-new townhomes boast a fantastic location right across the street from Glenbrook School and the Glenbrook Community Association. A number of major amenities are located within an easy 15-min walk, including Safeway, Glamorgan Bakery, and multiple restaurants including Richmond’s Pub. Plus, nearly every imaginable amenity can be found in nearby Westhills and Signal Hill Centres which are just a 6 minute drive away. Although peacefully tucked away on a lovely residential street, Sarcee Trail and Richmond Rd are both readily accessible, making everyday commuting around the city a breeze! Make this new townhome yours! *Interior photos are samples taken from a past project – actual finishes may vary. **RMS measurements derived from the builder’s plans and are subject to change upon completion.
Virtual Tour
Property Details
-
Property Type Row/Townhouse, Residential
-
MLS Number A2282731
-
Property Size 545.75 sqft
-
Bedrooms 2
-
Bathrooms 3
-
Year Built 2025
-
Property Status Active
-
Brokerage name RE/MAX House of Real Estate
Features & Amenities
Similar Listings
89 Everoak Drive SW, Calgary, Alberta, T2X 4X8
- $830,000
- $830,000
- Beds: 5
- Baths: 4
- 2271.00 sqft
- Detached, Residential
8 minutes ago
8 minutes ago
#203 2308 Centre Street NE, Calgary, Alberta, T2E 2T7
- $320,000
- $320,000
- Beds: 4
- Baths: 4
- 693.10 sqft
- Apartment, Residential
8 minutes ago
8 minutes ago
#412 7210 80 Avenue NE, Calgary, Alberta, T3J 0N7
- $189,999
- $189,999
- Bed: 1
- Bath: 1
- 508.40 sqft
- Apartment, Residential
8 minutes ago
8 minutes ago
#1010 615 6 Avenue SE, Calgary, Alberta, T2G1S2
- $309,900
- $309,900
- Bed: 1
- Bath: 1
- 555.69 sqft
- Apartment, Residential
1 hour ago
1 hour ago
Are you interested in #101 3550 45 Street SW, Calgary, Alberta, T3E 3V2?
For over two decades, home buyers and sellers have come to depend on us for our expertise in buying and selling their properties.
