- Home
- Land
- Residential Land
- 1928 Home Road NW, Calgary, Alberta, T1X 0Y4
1928 Home Road NW, Calgary, Alberta, T1X 0Y4
Montgomery, Calgary
- A2295227
- MLS Number
- 0.08
- Lot sqft
Property Description
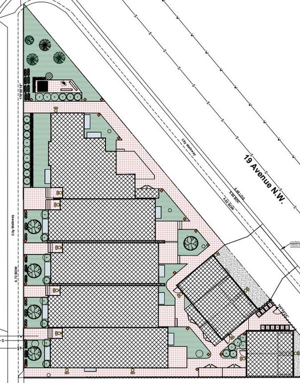
DP IN PLACE!! Exceptional development opportunity in the heart of Montgomery! Situated on a massive corner lot, this property comes with development permits already in place for five executive townhomes, each featuring its own private garage. With professionally designed plans by one of Calgary’s top designers, this is a turnkey, ready-to-break-ground project—and not your typical small-scale townhome development. The thoughtfully designed site also includes ample green space for residents, enhancing livability and long-term appeal.
Ideally located close to numerous amenities, public transit, the University of Calgary, and the Foothills Hospital, this site also offers quick access to major roadways and an easy escape to the mountains. Montgomery continues to be one of Calgary’s most sought-after inner-city communities, making this an excellent opportunity for builders and investors alike.
Perfect for rental income, MLI select, or resale, this is a rare chance to secure a premium development on a standout lot in a prime location.
Virtual Tour
Property Details
-
Property Type Residential Land, Land
-
MLS Number A2295227
-
Property Status Active
-
Brokerage name The Real Estate District
Features & Amenities
Similar Listings
315 Moraine Road NE, Calgary, Alberta, T2A 7L3
- $6,070
- $6,070
- Commercial Land, Land
13 minutes ago
13 minutes ago
1336 36 Street SE, Calgary, Alberta, T2A 1C3
- $525,000
- $525,000
- Residential Land, Land
3 days ago
3 days ago
1916 & 1928 Home Road, Calgary, Alberta, T1X 0Y4
- $1,895,000
- $1,895,000
- Residential Land, Land
3 days ago
3 days ago
358 Saddlecrest Circle NE, Calgary, Alberta, T3J 0Z2
- $380,000
- $380,000
- Residential Land, Land
3 days ago
3 days ago
Are you interested in 1928 Home Road NW, Calgary, Alberta, T1X 0Y4?
For over two decades, home buyers and sellers have come to depend on us for our expertise in buying and selling their properties.
