- Home
- Commercial
- Industrial
- 2182 39 Avenue NE, Calgary, Alberta, T2E 6P7
2182 39 Avenue NE, Calgary, Alberta, T2E 6P7
North Airways, Calgary
- A2178275
- MLS Number
- 1976
- Year Built
Property Description
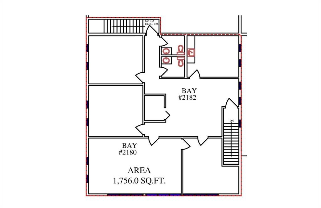
1,756 Sq. Ft of second floor office northeast location located by near 19 Street NE and 39 Avenue NE. The office space features reception / open concept area, three large private offices, one large office/boardroom, kitchenette area, and two washrooms. This space includes one assigned parking stall. Several cafes, restaurants, and many other amenities located by 32 Avenue NE and McKnight Boulevard NE. Close proximity to McKnight Boulevard, Barlow Trail NE, 32 Avenue NE and Deerfoot Trail NE. The Lease rate is $9.00 PSF and the Operating Costs is $9.62 PSF (Total of $18.62 PSF). Utilities are included in the Operating Costs.
Virtual Tour
Property Details
-
Property Type Industrial, Commercial
-
MLS Number A2178275
-
Year Built 1976
-
Property Status Active
-
Brokerage name CDN Global Advisors Ltd.
Features & Amenities
Similar Listings
920 36 Street NE, Calgary, Alberta, T2A 6L8
- $115,000
- $115,000
- Business, Commercial
1 hour ago
1 hour ago
123 Harvest Hills Drive NE, Calgary, Alberta, T3K 4R2
- $99,000
- $99,000
- Business, Commercial
4 hours ago
4 hours ago
320 16 Avenue NW, Calgary, Alberta, T2M 0H6
- $199,000
- $199,000
- Business, Commercial
5 hours ago
5 hours ago
6 hours ago
Are you interested in 2182 39 Avenue NE, Calgary, Alberta, T2E 6P7?
For over two decades, home buyers and sellers have come to depend on us for our expertise in buying and selling their properties.
