- Home
- Residential
- Semi Detached (Half Duplex)
- 42 Creekview Avenue SW, Calgary, Alberta, T2X 6M1
42 Creekview Avenue SW, Calgary, Alberta, T2X 6M1
Pine Creek, Calgary
- A2294594
- MLS Number
- 3
- Bedrooms
- 3
- Bathrooms
- 1795.30
- sqft
- 0.06
- Lot sqft
- 2026
- Year Built
Property Description
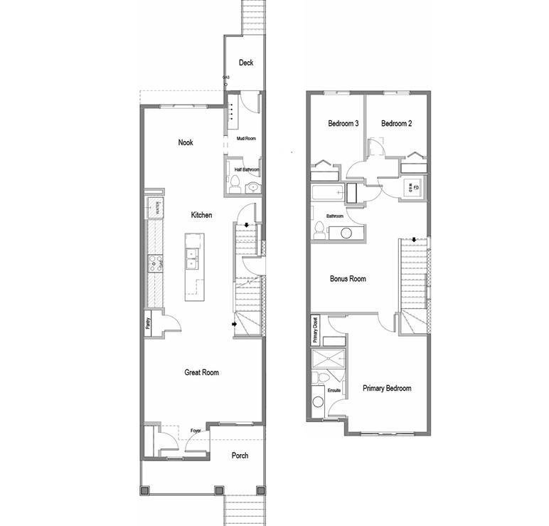
READY FOR POSSESSION JUNE 30, 2026. Welcome to a home that feels fresh, functional, and ready for what comes next. This brand new Cedarglen Homes Frank 18 model offers a thoughtful layout that balances everyday comfort with future flexibility. From the covered concrete FRONT VERANDA to the clean modern exterior, the curb appeal sets a confident first impression. Inside, the main floor flows effortlessly with an OPEN CONCEPT design that connects the great room, dining area, and central kitchen. Finished with QUARTZ COUNTERTOPS and FULL HEIGHT TWO TONED cabinetry (white upper cabinets and warm wood tone lowers/island), the kitchen becomes the natural heart of the home. As the buyer of this home, you’ll have an allowance of $6300 to select your dream appliances! A practical mudroom with a bench and coathooks keeps daily life organized and offers access to the 2 pc powder room. Upstairs, a central BONUS ROOM creates valuable separation between spaces, ideal for relaxing or working from home. The front facing primary bedroom offers a WALK IN CLOSET and private ENSUITE, while the two additional bedrooms share a full 4 pc bathroom. Upper level laundry adds convenience that simplifies busy routines. Modern finishes including LUXURY VINYL PLANK flooring, and POT LIGHTING create a bright, cohesive feel throughout. Built for long term value, this home features TRIPLE PANE WINDOWS, and TANKLESS HOT WATER. The basement offers a SEPARATE ENTRANCE, SECONDARY SUITE ROUGH IN, providing future potential as needs evolve (subject to city approvals and permits). Outside, the FULLY COMPLETED DECK extends living into the outdoors, complemented by a GRAVEL PARKING PAD and you’ll receive a landscaping rebate of $2000 when your front landscaping is completed within 1 year of closing. Surrounded by pathways and natural reserve lands, Creekview offers a peaceful setting with convenient access to Macleod Trail and Stoney Trail. This is a smart opportunity to own a brand new semi-detached home in a desirable community. Come experience the space and imagine the possibilities! *Photos are representative – they are from other completed properties with similar floor plans*
Virtual Tour
Property Details
-
Property Type Semi Detached (Half Duplex), Residential
-
MLS Number A2294594
-
Property Size 1795.30 sqft
-
Bedrooms 3
-
Bathrooms 3
-
Year Built 2026
-
Property Status Active
-
Parking 2
-
Brokerage name Royal LePage Benchmark
Features & Amenities
- 2 Storey
- Alley Access
- Asphalt Shingle
- Attached-Side by Side
- Bathroom Rough-in
- BBQ gas line
- Deck
- Front Porch
- Full
- High Efficiency
- Kitchen Island
- No Animal Home
- No Smoking Home
- Off Street
- Open Floorplan
- Pantry
- Park
- Parking Pad
- Playground
- Quartz Counters
- See Remarks
- Separate Entrance
- Sidewalks
- Street Lights
- Tankless Hot Water
- Walk-In Closet s
- Walking Bike Paths
Similar Listings
516 Greenbriar Common NW, Calgary, Alberta, T3B 6J3
- $435,000
- $435,000
- Beds: 2
- Baths: 2
- 1004.66 sqft
- Row/Townhouse, Residential
22 minutes ago
22 minutes ago
1310 Auburn Bay Square SE, Calgary, Alberta, T3M 0Y8
- $429,000
- $429,000
- Beds: 2
- Baths: 3
- 1263.62 sqft
- Row/Townhouse, Residential
22 minutes ago
22 minutes ago
40 Cougar Ridge Heights SW, Calgary, Alberta, T3H 4X5
- $1,139,000
- $1,139,000
- Beds: 5
- Baths: 4
- 2105.15 sqft
- Detached, Residential
22 minutes ago
22 minutes ago
48 Rivergreen Crescent SE, Calgary, Alberta, T2C 3V5
- $689,900
- $689,900
- Beds: 4
- Baths: 4
- 1763.19 sqft
- Detached, Residential
22 minutes ago
22 minutes ago
Are you interested in 42 Creekview Avenue SW, Calgary, Alberta, T2X 6M1?
For over two decades, home buyers and sellers have come to depend on us for our expertise in buying and selling their properties.
