- Home
- Residential
- Semi Detached (Half Duplex)
- 80 Heritage Manor, Cochrane, Alberta, T4C 3K8
80 Heritage Manor, Cochrane, Alberta, T4C 3K8
NONE, Cochrane
- A2293313
- MLS Number
- 3
- Bedrooms
- 3
- Bathrooms
- 1806.00
- sqft
- 0.07
- Lot sqft
- 2026
- Year Built
Property Description
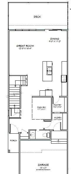
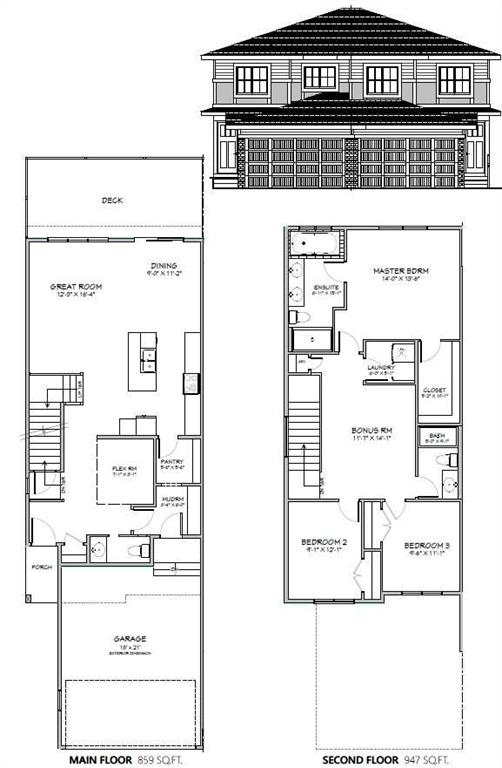
OPEN HOUSE SATURDAY MARCH 14 (1.00PM TO 4.00PM) – WALK-OUT BASEMENT, SOUTH FACING BACKYARD, 22 FEET WIDE DECK WITH PANORAMIC VIEWS !!!!! Welcome to the Harris-ll, located in the newly developed community of West Hawk — a peaceful, nature-inspired neighborhood surrounded by scenic mountain views and steps from future parks. This thoughtfully designed home opens to a charming foyer that leads to a versatile flex room, a convenient half bathroom with vanity sink, and a direct access to the double car garage. At the rear of the home, the L-shaped kitchen with 42″ cabinetry overlooks a spacious great room and dining area and a 22 feet wide deck overlooking a spacious backyard and — perfect for entertaining family and friends. Upstairs, you’re welcomed into a centrally located, spacious bonus room—perfect for family time or a cozy retreat. The second floor also features a large primary bedroom complete with a walk-in closet and private 5-piece ensuite. A spacious bonus room, two generously sized secondary bedrooms, a full bathroom, and a convenient laundry room complete the upper level. QUARTZ COUNTERTOPS THROUGHOUT, ALL UNDERMOUNT SINKS, POT LIGHTS IN KITCHEN INCLUDED, 9 FEET BASEMENT CEILING. Call now for more details !!! Interior pictures are for reference only and from other listing (108 Heritage Manor)
Virtual Tour
Property Details
-
Property Type Semi Detached (Half Duplex), Residential
-
MLS Number A2293313
-
Property Size 1806.00 sqft
-
Bedrooms 3
-
Bathrooms 3
-
Garage 1
-
Year Built 2026
-
Property Status Active
-
Parking 4
-
Brokerage name URBAN-REALTY.ca
Features & Amenities
- 2 Storey
- Asphalt Shingle
- Attached-Side by Side
- BBQ gas line
- Breakfast Bar
- Deck
- Dishwasher
- Double Garage Attached
- Electric Range
- Forced Air
- Full
- Garage Control s
- High Ceilings
- Kitchen Island
- Lighting
- Microwave Hood Fan
- Natural Gas
- Pantry
- Playground
- Private Entrance
- Private Yard
- Quartz Counters
- Refrigerator
- Schools Nearby
- Separate Entrance
- Shopping Nearby
- Sidewalks
- Soaking Tub
- Street Lights
Similar Listings
38 Bow Ridge Link Link, Cochrane, Alberta, T0L0W5
- $549,000
- $549,000
- Beds: 4
- Baths: 4
- 2078.60 sqft
- Detached, Residential
15 minutes ago
15 minutes ago
334 Rivercrest Road, Cochrane, Alberta, T4C 3E9
- $719,900
- $719,900
- Beds: 3
- Baths: 3
- 2104.47 sqft
- Detached, Residential
1 hour ago
1 hour ago
291 Rivercrest Way, Cochrane, Alberta, T4C 3E9
- $795,900
- $795,900
- Beds: 3
- Baths: 3
- 2341.11 sqft
- Detached, Residential
2 hours ago
2 hours ago
204 Sundown Road, Cochrane, Alberta, T4C 2M5
- $519,900
- $519,900
- Beds: 4
- Baths: 4
- 1782.42 sqft
- Row/Townhouse, Residential
8 hours ago
8 hours ago
Are you interested in 80 Heritage Manor, Cochrane, Alberta, T4C 3K8?
For over two decades, home buyers and sellers have come to depend on us for our expertise in buying and selling their properties.
