- Home
- Commercial
- Industrial
- #Unit 111 3501 23 Street NE, Calgary, Alberta, T2E 6V8
#Unit 111 3501 23 Street NE, Calgary, Alberta, T2E 6V8
North Airways, Calgary
- A2215068
- MLS Number
- 1977
- Year Built
Property Description
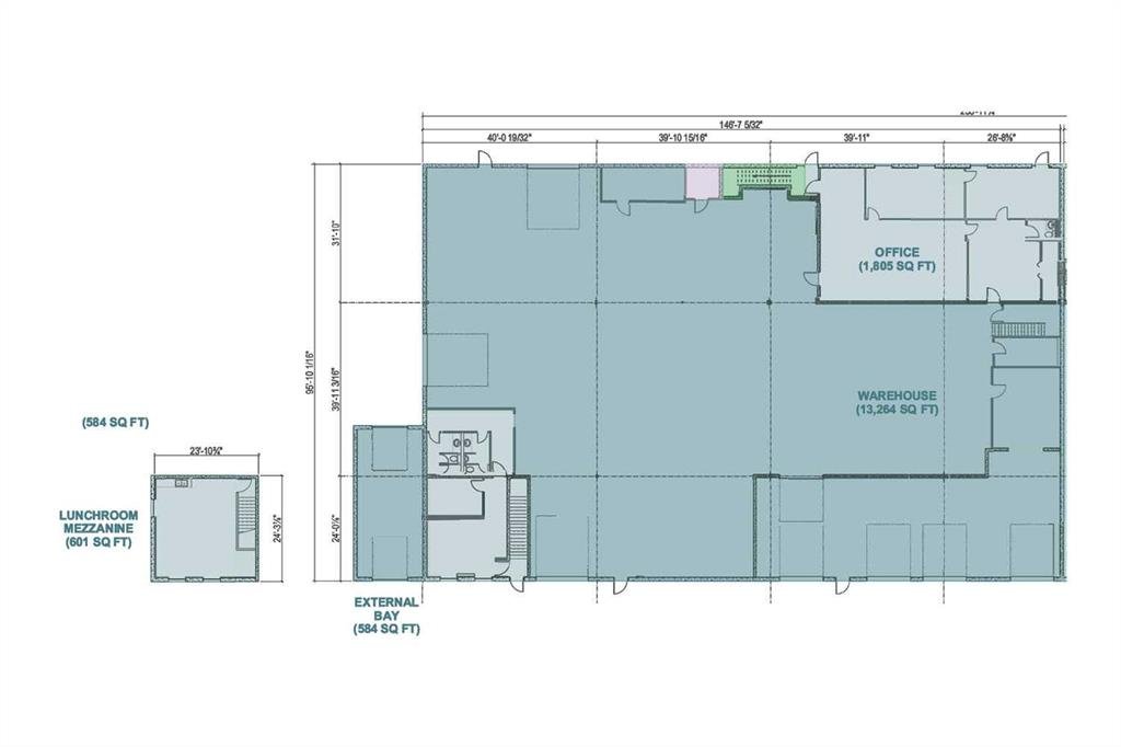
15,069 SF of industrial space, with the option to lease an additional ±33,000 SF of fenced yard. The lease rate for the unit starts at $13.00 PSF, and the lease rate for the yard is $1.50 PSF. The industrial unit includes 1,805 SF of office space and 13,264 SF of warehouse space. The office layout features a showroom area with private offices, a reception area at the rear of the unit, and a lunchroom on the second floor. The warehouse boasts 21.5 ft ceilings, 7 drive-in doors with drive-through capability, and heavy power (to be determined). Operating Costs (estimated for 2025) are $9.63 PSF, which includes electricity, gas, water, and sewage. Additional second-floor space is available. Conveniently located near 32 Avenue NE, Barlow Trail NE, and Deerfoot Trail NE.
Virtual Tour
Property Details
-
Property Type Industrial, Commercial
-
MLS Number A2215068
-
Year Built 1977
-
Property Status Active
-
Brokerage name CDN Global Advisors Ltd.
Features & Amenities
Similar Listings
#106 233 Centre Street SW, Calgary, Alberta, T2G 2B7
- $4,791
- $4,791
- Business, Commercial
11 hours ago
11 hours ago
14 hours ago
#150 11808 24 Street SW, Calgary, Alberta, T2W 6G2
- $749,000
- $749,000
- Retail, Commercial
20 hours ago
20 hours ago
#109 3825 34 Street NE, Calgary, Alberta, T1Y6Z8
- $3,750
- $3,750
- Industrial, Commercial
1 day ago
1 day ago
Are you interested in #Unit 111 3501 23 Street NE, Calgary, Alberta, T2E 6V8?
For over two decades, home buyers and sellers have come to depend on us for our expertise in buying and selling their properties.
