- Home
- Commercial
- Multi-Family
- 1123 Mckinnon Drive NE, Calgary, Alberta, T2E6A7
1123 Mckinnon Drive NE, Calgary, Alberta, T2E6A7
Mayland Heights, Calgary
- A2265783
- MLS Number
- 0.26
- Lot sqft
- 1974
- Year Built
Property Description
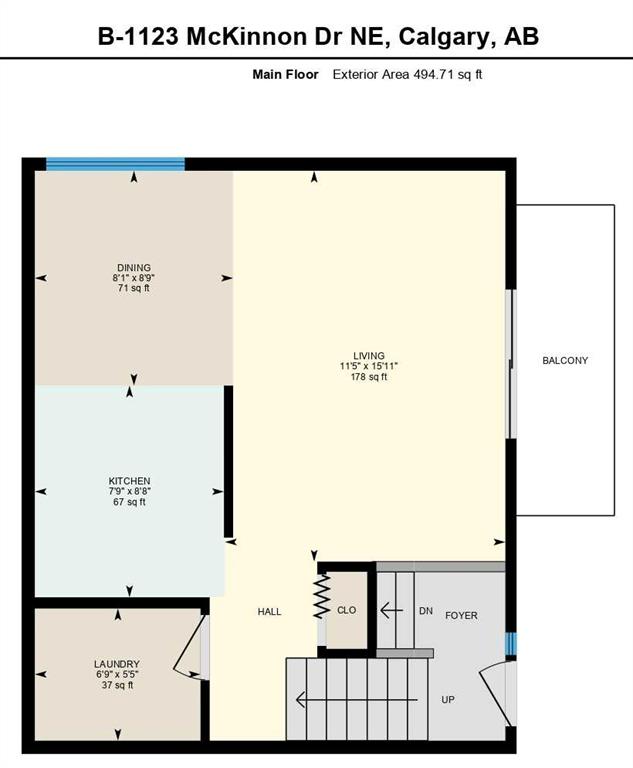
1123 McKinnon Drive NE | Excellent Investment Opportunity! | Legal 6-Plex | All Six Units Are Spacious Two Bedroom Apartments, Each Designed In a Bi-Level Style With The Bedrooms Located On The Lower Level For Privacy | Main Level Offers A Bright, Functional Layout With Kitchen, Living/Dining Area Leading To Private Balconies | Each Unit Includes Its Own In-Suite Laundry, A Highly Sought-After Feature For Tenants | Each Unit Has Its Own Meter | Three Car Garage Included, As Well As RV Parking | Excellent Connectivity Via Deerfoot Trail, 16 Avenue, Barlow Trail, & Nearby LRT Stations, With A 9 Minute Drive Or 15 Minute Transit Ride To Downtown | Abundant Green Spaces: Crossroads Park, Bottomland Park, Tom Campbell’s Hill Natural Park, Nose Creek Pathways, Bow River Pathways, & Deerfoot Athletic Park | Nearby Shopping Options Include Marlborough Mall, Sunridge Mall, Costco and T & T Supermarket | Trendy Shops, Cafes & Restaurants In Popular East Village Just Minutes Away | Students Have Three Excellent Schools Close By; Mayland Heights Elementary, Belfast Elementary, & Sir John Franklin Junior High.
Virtual Tour
Property Details
-
Property Type Commercial, Multi-Family
-
MLS Number A2265783
-
Year Built 1974
-
Property Status Active
-
Parking 10
-
Brokerage name Real Broker
Features & Amenities
Similar Listings
923 6 Avenue SW, Calgary, Alberta, T2P 0V7
- $139,900
- $139,900
- Retail, Commercial
11 hours ago
11 hours ago
19 hours ago
#300 900 6 Avenue SW, Calgary, Alberta, T2P 3K2
- $4,000
- $4,000
- Office, Commercial
21 hours ago
21 hours ago
24 hours ago
Are you interested in 1123 Mckinnon Drive NE, Calgary, Alberta, T2E6A7?
For over two decades, home buyers and sellers have come to depend on us for our expertise in buying and selling their properties.
