- Home
- Residential
- Detached
- 124 Strathbury Circle SW, Calgary, Alberta, T3H 1P9
124 Strathbury Circle SW, Calgary, Alberta, T3H 1P9
Strathcona Park, Calgary
- A2289958
- MLS Number
- 5
- Bedrooms
- 4
- Bathrooms
- 2271.00
- sqft
- 0.15
- Lot sqft
- 1981
- Year Built
Property Description
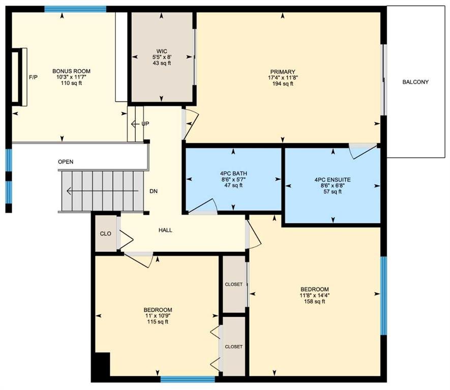
South facing houses backing on to the Ravine in Strathcona rarely come up for sale, this is your opportunity to live overlooking the serene beauty of nature. Pride of ownership is evident throughout this thoughtfully appointed property, located in the mature neighbourhood of Strathcona Park, surrounded by mature trees within Strathbury estates. Upon entering the front door, the homeowner is greeted by soaring ceilings, warm natural light and carefully delineated living spaces. Relax by the crackling wood fire whether you’re watching a movie, or curling up with a good book in your upstairs den/office. Looking out from your kitchen bay window, bask in gorgeous expansive views of the ravine. Lower walk out level has a cedar sauna for warming up on those cold winter nights. Your tranquil backyard can be viewed from the large deck off of the main level, primary bedroom, second bedroom and lower level bedroom. The backyard is extensively landscaped with natural rock features, an archway with sitting area, decorative plants and shrubs, and a wonderfully manicured lawn. Located close to schools, shopping, with a quick commute to downtown, this beautifully located and appointed home has it all and will sell quickly. Book your showing today!
Virtual Tour
Property Details
-
Property Type Detached, Residential
-
MLS Number A2289958
-
Property Size 2271.00 sqft
-
Bedrooms 5
-
Bathrooms 4
-
Garage 1
-
Year Built 1981
-
Property Status Active
-
Parking 4
-
Brokerage name Royal LePage Mission Real Estate
Features & Amenities
- 2 Storey Split
- Asphalt Shingle
- Breakfast Bar
- Deck
- Dishwasher
- Double Garage Attached
- Dryer
- Electric Stove
- Forced Air
- Full
- Garage Control s
- High Ceilings
- Humidifier
- Kitchen Island
- No Animal Home
- No Smoking Home
- Park
- Playground
- Private Yard
- Range Hood
- Refrigerator
- Sauna
- Schools Nearby
- Shopping Nearby
- Storage
- Street Lights
- Vaulted Ceiling s
- Washer
- Window Coverings
- Wood Burning
Similar Listings
129 Dovertree Place SE, Calgary, Alberta, T2B 2K3
- $430,000
- $430,000
- Beds: 3
- Baths: 2
- 997.30 sqft
- Semi Detached (Half Duplex), Residential
52 minutes ago
52 minutes ago
#1405 804 3 Avenue SW, Calgary, Alberta, T2P 2G9
- $459,900
- $459,900
- Bed: 1
- Baths: 2
- 1224.00 sqft
- Apartment, Residential
52 minutes ago
52 minutes ago
60 Evansborough Road NW, Calgary, Alberta, T3P 0R1
- $749,900
- $749,900
- Beds: 5
- Baths: 4
- 2052.50 sqft
- Detached, Residential
53 minutes ago
53 minutes ago
194 Drystone Way NW, Calgary, Alberta, T3R2M1
- $805,000
- $805,000
- Beds: 4
- Baths: 3
- 2051.76 sqft
- Detached, Residential
2 hours ago
2 hours ago
Are you interested in 124 Strathbury Circle SW, Calgary, Alberta, T3H 1P9?
For over two decades, home buyers and sellers have come to depend on us for our expertise in buying and selling their properties.
