- Home
- Residential
- Row/Townhouse
- 2401 17 Street SW, Calgary, Alberta, T2T4M9
2401 17 Street SW, Calgary, Alberta, T2T4M9
Bankview, Calgary
- A2287457
- MLS Number
- 2
- Bedrooms
- 2
- Bathrooms
- 1564.00
- sqft
- 0.05
- Lot sqft
- 1997
- Year Built
Property Description
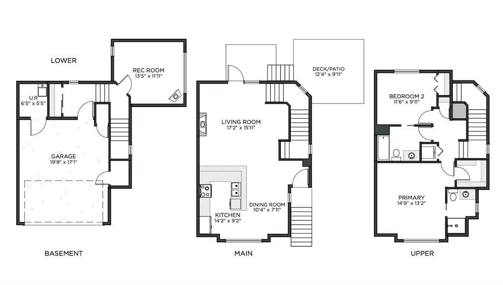
Fantastic end-unit townhome in the heart of Bankview offering a rare double car garage and an incredible rooftop patio! With 1,564 square feet of thoughtfully designed living space, this is an exceptional opportunity to live walking distance to downtown and directly across from a large park and tennis courts. Step inside to a welcoming open-concept main floor featuring 9-foot ceilings and a spacious layout designed for both everyday living and entertaining. The dedicated dining area easily accommodates a large table, while the impressive U-shaped kitchen offers stainless steel appliances, granite countertops, abundant cabinetry, and generous counter space. Enjoy beautiful park views right from your window as the kitchen flows seamlessly into the expansive living room, centred around a cozy gas fireplace with a designated nook for a desk or workspace.
French doors lead to the show-stopping outdoor space — a private patio that wraps around to stairs leading up to the massive rooftop terrace, perfect for entertaining, relaxing, and enjoying the surrounding views. Upstairs you’ll find two well-sized bedrooms, two full bathrooms, and convenient upper-floor laundry. The primary suite is generously sized with large windows overlooking the park, an updated ensuite bathroom, and a walk-in closet.
Between the main level and lower level, you’ll discover a fantastic and unique recreation room exclusive to this unit — ideal for a man cave, movie room, home office, or flex space. Complete with a second gas fireplace and beautiful California shutters, it’s a cozy and versatile retreat. The double attached garage truly feels like an extension of the home, featuring epoxy flooring, space for two vehicles, and two dedicated storage areas.
Additional upgrades include triple-pane windows (2023), a high-efficiency furnace, heat pump, tankless water heater, water softener, humidifier and thermostat (2022), along with updated paint, bathrooms, fixtures and more. Low condo fees of $367 per month and an unbeatable location make this home a standout opportunity. This impressive Bankview townhome truly has it all — space, style, updates, and exceptional outdoor living. Be sure to review the attached feature sheet for a complete list of upgrades and features.
Virtual Tour
Property Details
-
Property Type Row/Townhouse, Residential
-
MLS Number A2287457
-
Property Size 1564.00 sqft
-
Bedrooms 2
-
Bathrooms 2
-
Garage 1
-
Year Built 1997
-
Property Status Active
-
Parking 4
-
Brokerage name Sotheby's International Realty Canada
Features & Amenities
- 3 or more Storey
- Asphalt Shingle
- BBQ gas line
- Breakfast Bar
- Central Air
- Dishwasher
- Double Garage Attached
- Driveway
- Electric
- Forced Air
- Garage Control s
- Garburator
- Gas
- Gas Stove
- Granite Counters
- Heat Pump
- Humidifier
- Microwave
- Natural Gas
- Open Floorplan
- Patio
- Playground
- Porch
- Private Entrance
- Range Hood
- Refrigerator
- Schools Nearby
- Separate Entrance
- Shopping Nearby
- Sidewalks
- Storage
- Street Lights
- Tankless Water Heater
- Tennis Court s
- Walk-In Closet s
- Washer Dryer
- Water Softener
- Window Coverings
Similar Listings
#122 1750 Rangeview Drive SE, Calgary, Alberta, T3S 0X3
- $476,900
- $476,900
- Beds: 3
- Baths: 3
- 1572.69 sqft
- Row/Townhouse, Residential
19 minutes ago
19 minutes ago
329 Douglas Ridge Circle SE, Calgary, Alberta, T2Z 3H5
- $650,000
- $650,000
- Beds: 3
- Baths: 3
- 1720.08 sqft
- Detached, Residential
19 minutes ago
19 minutes ago
11 Simcoe Crescent SW, Calgary, Alberta, T3H 4K6
- $959,000
- $959,000
- Beds: 4
- Baths: 4
- 2100.00 sqft
- Detached, Residential
19 minutes ago
19 minutes ago
49 Rockhaven Green NW, Calgary, Alberta, T3G 5H3
- $1,350,000
- $1,350,000
- Beds: 4
- Baths: 5
- 2806.73 sqft
- Detached, Residential
19 minutes ago
19 minutes ago
Are you interested in 2401 17 Street SW, Calgary, Alberta, T2T4M9?
For over two decades, home buyers and sellers have come to depend on us for our expertise in buying and selling their properties.
