- Home
- Residential
- Apartment
- #303 300 Meredith Road NE, Calgary, Alberta, T2E 7A8
#303 300 Meredith Road NE, Calgary, Alberta, T2E 7A8
Crescent Heights, Calgary
- A2298711
- MLS Number
- 1
- Bedroom
- 1
- Bathroom
- 871.00
- sqft
- 1979
- Year Built
Property Description
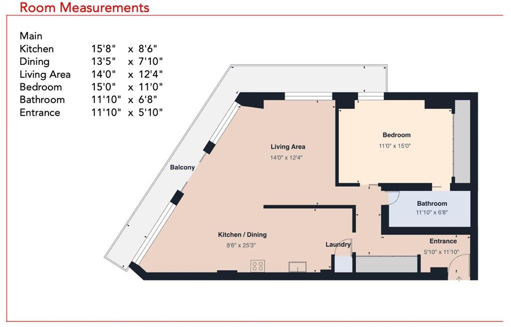
Experience elevated urban living in this stunning, updated one-bedroom sanctuary located in the prestigious Holly Park building of Crescent Heights. Boasting breathtaking panoramic views of the Bow River and the downtown skyline, this residence radiates pride of ownership through its modern finishes and unique, entertainer-friendly layout. Sun-drenched living and dining areas feature warm laminate flooring and expansive windows that open onto a massive wrap-around balcony, while the renovated kitchen impresses with custom tile work, bamboo countertops, and sleek built-in appliances. The generous primary suite offers a wall-to-wall closet and seamless access to the four-piece bath, but the true hidden gem is the ultimate convenience of same-level parking—your vehicle is located just across the hall. Beyond your front door, enjoy amazing amenities including an indoor pool, sauna, fitness centre, squash courts, and library all within walking distance of the city’s best biking trails and the downtown core.
Virtual Tour
Property Details
-
Property Type Apartment, Residential
-
MLS Number A2298711
-
Property Size 871.00 sqft
-
Bedroom 1
-
Bathroom 1
-
Year Built 1979
-
Property Status Active
-
Parking 1
-
Brokerage name Real Broker
Features & Amenities
- Apartment-Single Level Unit
- Balcony
- Balcony s
- Baseboard
- Dishwasher
- Dryer
- Electric Cooktop
- Heated Garage
- Microwave
- No Smoking Home
- Oven-Built-In
- Oversized
- Park
- Parkade
- Playground
- Pool
- Range Hood
- Recessed Lighting
- Refrigerator
- Schools Nearby
- Shopping Nearby
- Underground
- Washer
- Window Coverings
- Wine Refrigerator
- Wood Counters
- Wrap Around
Similar Listings
2918 Doverville Crescent SE, Calgary, Alberta, T2B 1T9
- $499,000
- $499,000
- Beds: 5
- Baths: 2
- 980.40 sqft
- Semi Detached (Half Duplex), Residential
29 minutes ago
29 minutes ago
151 Royal Oak Drive NW, Calgary, Alberta, T3G 0B8
- $599,900
- $599,900
- Beds: 3
- Baths: 4
- 1106.90 sqft
- Detached, Residential
29 minutes ago
29 minutes ago
202 19 Avenue NE, Calgary, Alberta, T2E 1P1
- $1,050,000
- $1,050,000
- Beds: 4
- Baths: 4
- 1982.00 sqft
- Detached, Residential
30 minutes ago
30 minutes ago
16 Skyview Springs Road NE, Calgary, Alberta, T3N 0C6
- $599,999
- $599,999
- Beds: 4
- Baths: 4
- 1466.00 sqft
- Detached, Residential
32 minutes ago
32 minutes ago
Are you interested in #303 300 Meredith Road NE, Calgary, Alberta, T2E 7A8?
For over two decades, home buyers and sellers have come to depend on us for our expertise in buying and selling their properties.
