- Home
- Residential
- Semi Detached (Half Duplex)
- 3043 28 Street SW, Calgary, Alberta, T3E 2J4
3043 28 Street SW, Calgary, Alberta, T3E 2J4
Killarney/Glengarry, Calgary
- A2296577
- MLS Number
- 5
- Bedrooms
- 4
- Bathrooms
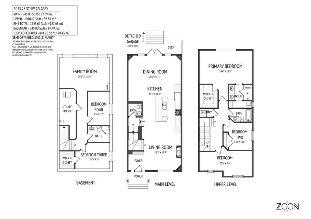
- 1955.67
- sqft
- 0.07
- Lot sqft
- 2007
- Year Built
Property Description
Ideally located in the heart of Killarney, this beautifully maintained custom-built home combines thoughtful design with a warm and inviting atmosphere. With a desirable west-facing backyard, you’ll enjoy afternoon sunshine and long summer evenings on the spacious two-tier deck.
This two storey home has over 2800 square feet of developed space. Step inside and you’re welcomed by beautifully refinished hardwood floors and a bright, open main floor designed for everyday living and entertaining. The layout flows effortlessly from the sitting area into the kitchen, dining space, and comfortable living room.
At the heart of the home is the gourmet kitchen, featuring quartz countertops, a large island with stylish new pendant lighting, abundant cabinetry, stainless steel appliances including a gas range and new dishwasher, pantry storage, and under-cabinet lighting. The adjacent sitting area offers plenty of space to relax, highlighted by a cozy gas fireplace.
The dining and living areas open through west-facing double doors to the sunny backyard and two-tier deck, creating the perfect indoor-outdoor connection. The yard is complemented by a detached double garage. In 2025 the back lane was paved.
Upstairs, you’ll find three generous bedrooms and a spacious primary suite includes a walk-in closet and a well-appointed ensuite with double sinks and a large steam shower.
The fully developed lower level offers excellent flexibility with a large recreation room currently used as a gym, a full bathroom, and another bedroom with a walk-in closet. All doors in the home are solid core. The dedicated bike room could also be converted into a fourth bedroom if needed.
Recent upgrades provide peace of mind, including new roof shingles with additional venting, a new garage door, a high-efficiency furnace, and an on-demand hot water system. Both the furnace and hot water system come with a five-year warranty. Additional features include a new water softener and a convenient outdoor hot water tap.
All of this in a fantastic location close to transit, shopping, restaurants, and everyday amenities, making it easy to enjoy everything Killarney has to offer.
Virtual Tour
Property Details
-
Property Type Semi Detached (Half Duplex), Residential
-
MLS Number A2296577
-
Property Size 1955.67 sqft
-
Bedrooms 5
-
Bathrooms 4
-
Garage 1
-
Year Built 2007
-
Property Status Active
-
Parking 2
-
Brokerage name Real Broker
Features & Amenities
- 2 Storey
- Asphalt Shingle
- Attached-Side by Side
- BBQ gas line
- Ceiling Fan s
- Deck
- Dishwasher
- Double Garage Detached
- Double Vanity
- Forced Air
- Full
- Gas
- Gas Stove
- Kitchen Island
- Open Floorplan
- Pantry
- Park
- Playground
- Porch
- Private Yard
- Quartz Counters
- Refrigerator
- Schools Nearby
- See Remarks
- Shopping Nearby
- Sidewalks
- Street Lights
- Walk-In Closet s
- Washer Dryer Stacked
Similar Listings
91 Patterson Crescent SW, Calgary, Alberta, T3J 2B9
- $1,490,000
- $1,490,000
- Beds: 3
- Baths: 6
- 4127.86 sqft
- Detached, Residential
51 minutes ago
51 minutes ago
129 Arbour Ridge Circle NW, Calgary, Alberta, T3G 3Y9
- $795,000
- $795,000
- Beds: 4
- Baths: 4
- 1854.00 sqft
- Detached, Residential
51 minutes ago
51 minutes ago
3319 56 Street NE, Calgary, Alberta, T1Y 3Y7
- $495,000
- $495,000
- Beds: 2
- Baths: 2
- 913.00 sqft
- Semi Detached (Half Duplex), Residential
52 minutes ago
52 minutes ago
#304 1212 13 Street SE, Calgary, Alberta, T2G 5R3
- $679,900
- $679,900
- Bed: 1
- Baths: 3
- 1431.00 sqft
- Row/Townhouse, Residential
52 minutes ago
52 minutes ago
Are you interested in 3043 28 Street SW, Calgary, Alberta, T3E 2J4?
For over two decades, home buyers and sellers have come to depend on us for our expertise in buying and selling their properties.
