- Home
- Residential
- Detached
- 438 Corner Glen Way NE, Calgary, Alberta, T3N 2P1
438 Corner Glen Way NE, Calgary, Alberta, T3N 2P1
Cornerstone, Calgary
- A2273925
- MLS Number
- 4
- Bedrooms
- 3
- Bathrooms
- 2632.85
- sqft
- 0.09
- Lot sqft
- 2025
- Year Built
Property Description
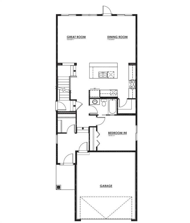
*SIDE ENTRANCE*BRAND NEW HOME*QUICK POSSESSION*10 SOLAR PANELS*MAIN FLOOR BEDROOM SUITE* Amazing Design! Unique in Features! Over 2600+ SF of Stylish design welcomes you into this stunning FOUR BEDROOM and 3 FULL BATH home located in the beautiful community of Cornerstone. You’re welcome to a thoughtfully designed living space that maximizes every inch while offering an abundance of space for your whole family to enjoy! The Gorgeous OPEN FLOOR PLAN invites you in to discover a lovely kitchen that boasts beautiful QUARTZ countertops, a sleek stainless steel Whirlpool appliance package with an upgraded electric stove, a French Door fridge with/ Internal Water/Ice, a Microwave and a Broan power pack built-in cabinet hood fan. A large walk-in corner pantry and beautiful extended oversized flush centre Island that overlooks the generous great room and dining room-Ideal for all entertaining. A sizeable 4TH BEDROOM on the main floor, perfect for a large family or working from home as you have a full bath adjacent to the functional space with a private pocket door access. Upstairs, you will discover THREE MORE BEDROOMS with a Primary Bedroom boasting a 5pc en suite with dual vanities, a stand-alone shower, an oversized bath and two large walk-in closets. A centralized BONUS ROOM offers an additional living space and another full bath, plus 2nd-floor laundry with a window feature, completing the level. ADDITIONAL FEATURES: Fit and Finish SELECT, professionally designed Grey Palette, rear patio door, convenient side entrance, raised 9′ basement ceiling height, and 3-piece rough-in plumbing. Situated close to the International Airport with quick access to both Deer Foot Trail and Stoney Trail, along with new amenities being added to the community continuously, you will enjoy all Cornerstone has to offer. A brand new build with all of the difficult decisions decided along with a functional and intelligent floor plan for a large family. Perfect!!
Virtual Tour
Property Details
-
Property Type Detached, Residential
-
MLS Number A2273925
-
Property Size 2632.85 sqft
-
Bedrooms 4
-
Bathrooms 3
-
Garage 1
-
Year Built 2025
-
Property Status Active
-
Parking 4
-
Brokerage name Jayman Realty Inc.
Features & Amenities
- 2 Storey
- Asphalt Shingle
- Concrete Driveway
- Dishwasher
- Double Garage Attached
- Double Vanity
- Electric Stove
- Forced Air
- Full
- Garage Control s
- Garage Door Opener
- Garage Faces Front
- High Ceilings
- Kitchen Island
- Microwave
- Natural Gas
- No Animal Home
- No Smoking Home
- Open Floorplan
- Pantry
- Playground
- Quartz Counters
- Range Hood
- Refrigerator
- Schools Nearby
- Sidewalks
- Smart Home
- Street Lights
- Tankless Hot Water
- Tankless Water Heater
- Vinyl Windows
- Walk-In Closet s
Similar Listings
#217 30 Walgrove SE, Calgary, Alberta, T2X 4M9
- $379,999
- $379,999
- Beds: 2
- Baths: 2
- 841.00 sqft
- Apartment, Residential
49 minutes ago
49 minutes ago
309 Bridleridge Way SW, Calgary, Alberta, T2Y 4M5
- $550,000
- $550,000
- Beds: 3
- Baths: 2
- 1383.00 sqft
- Detached, Residential
52 minutes ago
52 minutes ago
#507 72 Cornerstone Manor NE, Calgary, Alberta, T3N 1S4
- $410,000
- $410,000
- Beds: 3
- Baths: 3
- 1587.94 sqft
- Row/Townhouse, Residential
52 minutes ago
52 minutes ago
#627 3932 University Avenue NW, Calgary, Alberta, T3B 6P6
- $355,000
- $355,000
- Bed: 1
- Bath: 1
- 505.00 sqft
- Apartment, Residential
52 minutes ago
52 minutes ago
Are you interested in 438 Corner Glen Way NE, Calgary, Alberta, T3N 2P1?
For over two decades, home buyers and sellers have come to depend on us for our expertise in buying and selling their properties.
