- Home
- Residential
- Detached
- 161 Douglasview Rise SE, Calgary, Alberta, T2Z 2H8
161 Douglasview Rise SE, Calgary, Alberta, T2Z 2H8
Douglasdale/Glen, Calgary
- A2274803
- MLS Number
- 4
- Bedrooms
- 4
- Bathrooms
- 1948.00
- sqft
- 0.11
- Lot sqft
- 1994
- Year Built
Property Description
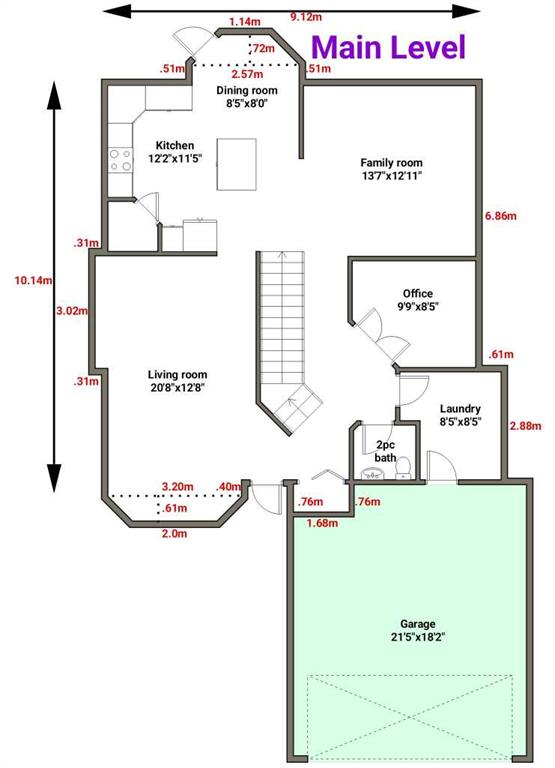
*Open House Sunday, Jan 18 2-4pm* Beautifully upgraded and backing onto the 10th hole of Eaglequest Golf Course, this Douglasdale home pairs elegant design with an exceptional location. From the moment you arrive, the immaculate landscaping and undeniable curb appeal reflect the pride of ownership found throughout. Inside, a grand entry with soaring ceilings, fresh paint, and a statement chandelier sets the stage for a bright, airy interior. Floor-to-ceiling bay windows flood the living room with natural light, showcasing gleaming hardwood floors that extend into the open-concept dining area. The kitchen impresses with its striking palette, new stainless-steel appliances, new sink and garburator, and a full pantry. An eat-up island and sunny breakfast nook overlook serene golf course views — an ideal backdrop for your morning coffee. Step outside to an expansive deck with glass-panel railings designed to draw you into the peaceful surroundings. Back inside, the cozy family room offers the perfect place to unwind by the gas fireplace, while a main floor office, powder room, and laundry area with a brand-new washer and dryer add convenience and versatility. The oversized double-attached garage comes equipped with built-in storage and a new smart door opener. Upstairs, the primary retreat is truly stunning, featuring vaulted ceilings, arched windows, a spacious custom walk-in closet, and a spa-inspired ensuite with a jetted tub and separate shower. Two additional generous bedrooms and a large main bath complete the upper level. The finished basement is a standout, offering one of the brightest lower levels you’ll find. A second gas fireplace anchors the expansive rec room, perfect for movie nights, a home gym, or a games area. You’ll also find a second office with built-ins and bay windows, a half bath, and abundant storage in the utility room. Additional features include central air conditioning, a smart thermostat, and an irrigation system. Outside, the deck steps down to a stamped concrete patio, and the lush lawn bordered by mature foliage creates an inviting setting at any time of day. Situated in a highly walkable neighborhood close to schools, parks, and sports fields, this home is also near the Bow River Pathway. Fish Creek Park is just a block away, and South Trail Crossing’s shops and dining are only minutes from your door. Quick access to Deerfoot and Stoney Trails ensures effortless commuting and easy escapes for weekend adventures. This home truly has it all — style, comfort, and an unbeatable setting. Book your showing today!
Virtual Tour
Property Details
-
Property Type Detached, Residential
-
MLS Number A2274803
-
Property Size 1948.00 sqft
-
Bedrooms 4
-
Bathrooms 4
-
Garage 1
-
Year Built 1994
-
Property Status Active
-
Parking 4
-
Brokerage name Real Broker
Features & Amenities
- 2 Storey
- Asphalt Shingle
- Breakfast Bar
- Central Air
- Central Air Conditioner
- Deck
- Dishwasher
- Double Garage Attached
- Dryer
- Electric Stove
- Forced Air
- Full
- Garage Control s
- Garburator
- Gas
- Golf
- Kitchen Island
- Microwave Hood Fan
- Natural Gas
- No Smoking Home
- Playground
- Refrigerator
- Schools Nearby
- Shopping Nearby
- Walk-In Closet s
- Walking Bike Paths
- Washer
- Window Coverings
Similar Listings
2028 25a Street SW, Calgary, Alberta, T3E 1Y7
- $1,179,000
- $1,179,000
- Beds: 4
- Baths: 4
- 2210.26 sqft
- Semi Detached (Half Duplex), Residential
16 minutes ago
16 minutes ago
107 Macewan Park Way NW, Calgary, Alberta, T3K 3E4
- $429,900
- $429,900
- Beds: 3
- Baths: 2
- 960.00 sqft
- Semi Detached (Half Duplex), Residential
16 minutes ago
16 minutes ago
60 Scenic Gardens NW, Calgary, Alberta, T3L 1Y6
- $449,000
- $449,000
- Beds: 3
- Baths: 3
- 1452.70 sqft
- Row/Townhouse, Residential
17 minutes ago
17 minutes ago
191 Herron Rise NE, Calgary, Alberta, T3P 2G2
- $768,888
- $768,888
- Beds: 4
- Baths: 4
- 1836.48 sqft
- Detached, Residential
17 minutes ago
17 minutes ago
Are you interested in 161 Douglasview Rise SE, Calgary, Alberta, T2Z 2H8?
For over two decades, home buyers and sellers have come to depend on us for our expertise in buying and selling their properties.
