- Home
- Multi-Family
- Triplex
- 1927 1929 1931 McCaskill Drive, Crossfield, Alberta, T0M0C1
1927 1929 1931 McCaskill Drive, Crossfield, Alberta, T0M0C1
NONE, Crossfield
- A2257619
- MLS Number
- 4153.00
- sqft
- 2025
- Year Built
Property Description
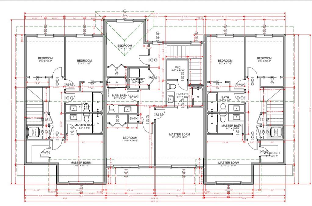
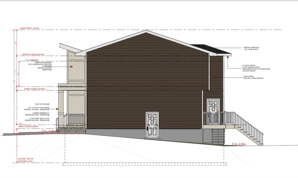
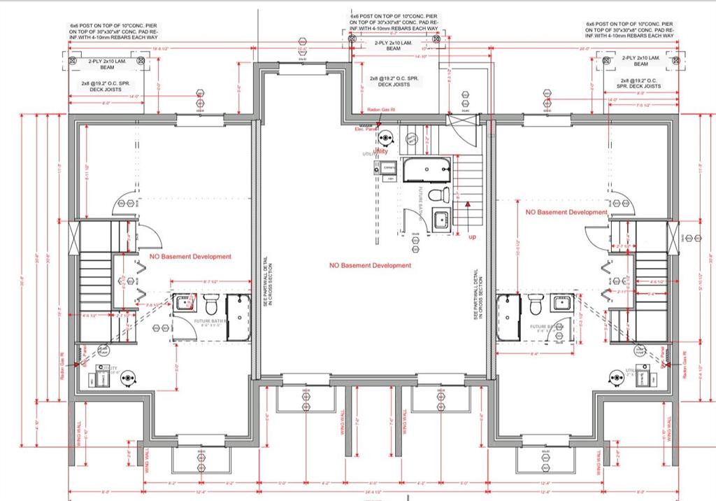
Enhance your real estate portfolio with this new construction triplex in the Town of Crossfield AB that is under construction and scheduled for completion in the end of 2025. This purpose-built investment property consists of three buildings featuring each unit has a spacious 3 bedrooms and 2.5 bathrooms, modern kitchen and island, the middle unit has an office on the main floor, front porch and back yards. Well designed space both side units are 1305 square feet and middle unit total 1,543 square feet as per plans. A total 6 cars parking pads with lane access provides added convenience and tenant appeal. All units have separate side entrances to the basement. Crossfield is a quiet and rapidly growing town which has well rated one elementary and one high school, day care, golf course parks, playgrounds, and other amenities. Strategically located near Airdrie, Balzac, 30 minutes to Calgary Airport and close to Highway 2 for commuting.
Virtual Tour
Property Details
-
Property Type Triplex, Multi-Family
-
MLS Number A2257619
-
Property Size 4153.00 sqft
-
Year Built 2025
-
Property Status Active
-
Parking 6
-
Brokerage name Insta Realty
Features & Amenities
Similar Listings
1995 1997 1999 McCaskill Drive, Crossfield, Alberta, T0M0C1
- $1,350,000
- $1,350,000
- 3993.00 sqft
- Triplex, Multi-Family
7 months ago
7 months ago
Are you interested in 1927 1929 1931 McCaskill Drive, Crossfield, Alberta, T0M0C1?
For over two decades, home buyers and sellers have come to depend on us for our expertise in buying and selling their properties.
