- Home
- Residential
- Row/Townhouse
- #2002 1001 8 Street NW, Airdrie, Alberta, T4B 0W3
#2002 1001 8 Street NW, Airdrie, Alberta, T4B 0W3
Williamstown, Airdrie
- A2274337
- MLS Number
- 4
- Bedrooms
- 4
- Bathrooms
- 1525.80
- sqft
- 0.06
- Lot sqft
- 2010
- Year Built
Property Description
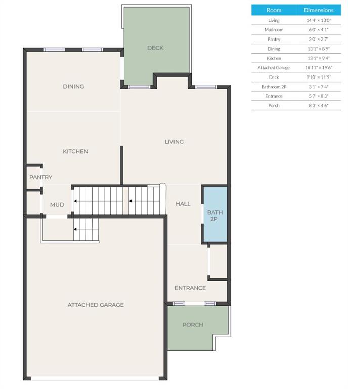
Reasons to love this home: 1. Double Attached Garage 2. Brand New Fully Finished Basement 3. South Facing Deck 4. Steps from the Williamstown Reserve 5. Close to Herons Crossing School (K-8) Tucked into the Trails of Williamstown, you’re steps from the 60 Acre Environmental Reserve, with creeks and walking and biking paths that wind through the neighbourhood, and Herons Crossing School is just a quick walk away. Be sure to check out the Woodside Golf Course and Alexanders Restaurant, both within walking distance! Ducts were just professionally cleaned!
Inside, the layout feels open and welcoming, with a fireplace to cozy up around and a kitchen that has granite counters and warm wood cabinets. You will love the South Facing Sun on your back deck. Off the Kitchen is your conveniently located double attached garage. Upstairs you’ll see the Primary Bedroom with a 4-Piece Ensuite (Soaker Tub for those long days), 2 more bedrooms, another full bath, and laundry right where you need it. The basement is brand new, professionally finished (with permits) and adds a bright and spacious rec room, a fourth bedroom, and another full bath (stunning tiled shower with glass door) — perfect for guests, teens, or movie nights.
It’s an easy place to feel at home — and even easier to get wherever you’re going, with quick access to shopping and the highway for commuters.
Virtual Tour
Property Details
-
Property Type Row/Townhouse, Residential
-
MLS Number A2274337
-
Property Size 1525.80 sqft
-
Bedrooms 4
-
Bathrooms 4
-
Garage 1
-
Year Built 2010
-
Property Status Active
-
Parking 4
-
Brokerage name CIR Realty
Features & Amenities
Similar Listings
289 Canals Circle SW, Airdrie, Alberta, T4B 2Z5
- $646,000
- $646,000
- Beds: 4
- Baths: 3
- 2319.90 sqft
- Detached, Residential
11 hours ago
11 hours ago
#1204 604 East Lake Boulevard NE, Airdrie, Alberta, T4A 0G5
- $275,000
- $275,000
- Beds: 2
- Baths: 2
- 832.05 sqft
- Apartment, Residential
13 hours ago
13 hours ago
1085 Coopers Drive SW, Airdrie, Alberta, T4B 0Z8
- $1,399,000
- $1,399,000
- Beds: 5
- Baths: 5
- 3389.08 sqft
- Detached, Residential
15 hours ago
15 hours ago
#402 1225 Kings Heights Way SE, Airdrie, Alberta, T4A 0T7
- $375,000
- $375,000
- Beds: 2
- Baths: 3
- 1090.44 sqft
- Row/Townhouse, Residential
16 hours ago
16 hours ago
Are you interested in #2002 1001 8 Street NW, Airdrie, Alberta, T4B 0W3?
For over two decades, home buyers and sellers have come to depend on us for our expertise in buying and selling their properties.
