- Home
- Residential
- Detached
- 35 Emberside Garden, Cochrane, Alberta, T4C2L9
35 Emberside Garden, Cochrane, Alberta, T4C2L9
Fireside, Cochrane
- A2285541
- MLS Number
- 4
- Bedrooms
- 4
- Bathrooms
- 1672.00
- sqft
- 0.08
- Lot sqft
- 2017
- Year Built
Property Description
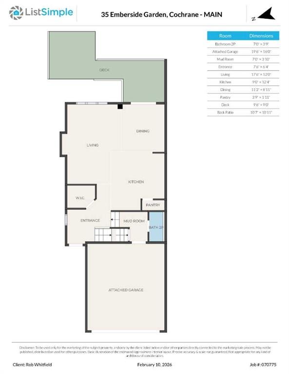
Welcome to this beautifully maintained and extensively upgraded Calbridge-built two-storey in the heart of Fireside — offering direct access to both the public and Catholic K–8 schools right behind the home.
For families, this location is exceptional. WATCH OR WALK your children to school in SECONDS and enjoy the convenience of playgrounds, a ball diamond, outdoor rink, skate park, future dog park and scenic forest trails all just steps away. It’s a lifestyle designed around growing families and everyday ease.
Inside, the main floor features 9’ ceilings, a stunning 8’ rear window and 8’ patio door that flood the space with natural light, and upgraded kitchen cabinetry extended to the ceiling. The kitchen is beautifully appointed with brand new refrigerator and stove (2025), newer dishwasher, and modern finishes throughout. Hunter Douglas blinds are installed in all windows, and new CENTRAL A/C (2025) ensures year-round comfort.
Upstairs, you’ll find three generous bedrooms and a large, cozy bonus room highlighted by a stunning feature wall — the perfect family gathering space. The primary retreat offers a spacious walk-in closet and an impressive 5-piece ensuite designed for comfort and relaxation. Convenient upper-floor laundry with a newer washing machine adds everyday practicality.
The professionally finished basement, completed by Calbridge, includes large sunshine windows that create a bright and welcoming lower level, complete with an additional bedroom, full bathroom and spacious recreation area — ideal for guests or teens.
Step outside to a thoughtfully designed backyard with two decks, a privacy pergola (2023), and strategically planted trees for added privacy while still enjoying the open space behind. The widened driveway and dedicated bin pad (2025), along with new low-maintenance front landscaping (2025), enhance both function and curb appeal.
Located just 5 minutes to shopping, restaurants, daily essentials & Highway 22 for Calgary or mountain access, and only 10 minutes to downtown Cochrane, this home blends quality construction, thoughtful upgrades and unbeatable family convenience.
Meticulously cared for and truly move-in ready.
Virtual Tour
Property Details
-
Property Type Detached, Residential
-
MLS Number A2285541
-
Property Size 1672.00 sqft
-
Bedrooms 4
-
Bathrooms 4
-
Garage 1
-
Year Built 2017
-
Property Status Active
-
Parking 4
-
Brokerage name KIC Realty
Features & Amenities
- 2 Storey
- Asphalt Shingle
- Ceiling Fan s
- Central Air
- Central Air Conditioner
- Deck
- Dishwasher
- Double Garage Attached
- Double Vanity
- Dryer
- Electric Range
- Family Room
- Forced Air
- Full
- Garage Control s
- Gas
- High Ceilings
- Kitchen Island
- Microwave Hood Fan
- Natural Gas
- No Smoking Home
- Open Floorplan
- Pantry
- Park
- Pergola
- Playground
- Pond
- Quartz Counters
- Refrigerator
- Schools Nearby
- Shopping Nearby
- Walk-In Closet s
- Walking Bike Paths
- Washer
- Window Coverings
Similar Listings
29 Sundown Close, Cochrane, Alberta, T4C 1E6
- $749,900
- $749,900
- Beds: 4
- Baths: 4
- 1948.75 sqft
- Detached, Residential
4 hours ago
4 hours ago
124 Gleneagles Terrace, Cochrane, Alberta, T4C 1W6
- $759,000
- $759,000
- Beds: 3
- Baths: 4
- 1860.59 sqft
- Detached, Residential
12 hours ago
12 hours ago
56 West Terrace Road, Cochrane, Alberta, T4C 1S5
- $459,000
- $459,000
- Beds: 3
- Baths: 3
- 1335.40 sqft
- Semi Detached (Half Duplex), Residential
13 hours ago
13 hours ago
25 Fireside Landing, Cochrane, Alberta, T4C 0V9
- $655,000
- $655,000
- Beds: 3
- Baths: 3
- 1419.72 sqft
- Semi Detached (Half Duplex), Residential
13 hours ago
13 hours ago
Are you interested in 35 Emberside Garden, Cochrane, Alberta, T4C2L9?
For over two decades, home buyers and sellers have come to depend on us for our expertise in buying and selling their properties.
