- Home
- Residential
- Detached
- 36 Chaparral Drive SE, Calgary, Alberta, T2X3J6
36 Chaparral Drive SE, Calgary, Alberta, T2X3J6
Chaparral, Calgary
- A2297285
- MLS Number
- 4
- Bedrooms
- 4
- Bathrooms
- 1834.00
- sqft
- 0.11
- Lot sqft
- 1994
- Year Built
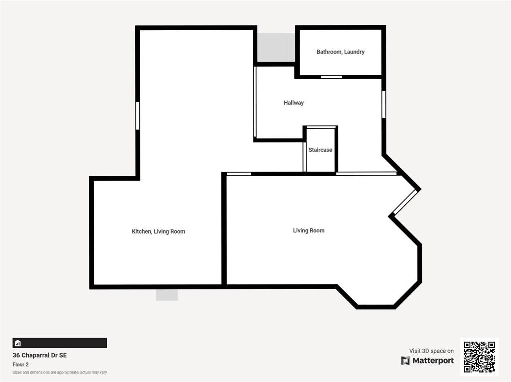
Property Description
Updated Plumbing (no poly-B), Modern Kitchen, Flat Ceiling (popcorn removed). South Facing onto Green Space for natural lighting, steps from school, playgrounds and shopping. Walking distance to the lake for all the fun the lake community park offers.
Step into this stunning, move-in-ready home in the heart of Chaparral, offering 4 bedrooms, 3.5 bathrooms, and a layout designed for both everyday living and entertaining. Thanks to its desirable south-facing exposure, the home is filled with natural sunlight, creating a bright and cheerful atmosphere throughout.
This former AVI show home stands out with its thoughtful upgrades and quality finishes. The spacious primary bedroom is a true retreat, featuring a luxurious ensuite and dual walk-in closets. On the main floor, rich hardwood flooring adds warmth and elegance, while the stylish kitchen features upgraded cabinetry, granite countertops, and modern fixtures. A fresh coat of neutral paint throughout gives the home a clean, contemporary feel.
Downstairs, the fully developed basement offers even more living space, complete with a cozy family area and fireplace, an additional bedroom, and a mix of comfortable carpet and durable vinyl flooring. There’s also an oversized utility and storage room, perfect for keeping everything organized.
This home has been carefully maintained with key updates already completed, including a new roof, updated plumbing (no Poly B), a newer hot water tank, and smooth ceilings with popcorn texture removed. The double attached garage is fully insulated and finished, adding extra convenience.
Enjoy outdoor living on the large backyard deck—perfect for relaxing or hosting friends and family. Ideally situated, the home faces a school and greenspace, making it great for families, and is just a short walk to Chaparral Lake Park, where residents enjoy private lake access. Shopping, parks, and amenities are all just minutes away.
This is a beautifully upgraded, turnkey property in a fantastic location—ready for you to call home. Schedule your showing today!
Virtual Tour
Property Details
-
Property Type Detached, Residential
-
MLS Number A2297285
-
Property Size 1834.00 sqft
-
Bedrooms 4
-
Bathrooms 4
-
Garage 1
-
Year Built 1994
-
Property Status Active
-
Parking 4
-
Brokerage name First Place Realty
Features & Amenities
- 2 Storey
- Asphalt Shingle
- Basement
- Central
- Deck
- Dishwasher
- Double Garage Attached
- Electric Stove
- Family Room
- Front Porch
- Full
- Garage Control s
- Garden
- Gas
- Granite Counters
- Kitchen Island
- Lake
- Microwave Hood Fan
- Natural Gas
- No Animal Home
- No Smoking Home
- Pantry
- Park
- Playground
- Private Yard
- Refrigerator
- Schools Nearby
- Shopping Nearby
- Sidewalks
- Soaking Tub
- Storage
- Street Lights
- Walk-In Closet s
- Washer Dryer
- Window Coverings
Similar Listings
5044 Norris Road NW, Calgary, Alberta, T2K 2P9
- $599,999
- $599,999
- Beds: 3
- Baths: 2
- 1098.82 sqft
- Detached, Residential
55 seconds ago
55 seconds ago
#424 200 Brookpark Drive SW, Calgary, Alberta, T2W3E5
- $268,000
- $268,000
- Beds: 2
- Bath: 1
- 1099.96 sqft
- Row/Townhouse, Residential
2 hours ago
2 hours ago
#1207 80 Greenbriar Place NW, Calgary, Alberta, T3B 6J4
- $325,000
- $325,000
- Bed: 1
- Bath: 1
- 607.19 sqft
- Apartment, Residential
3 hours ago
3 hours ago
59 Edgebrook Circle NW, Calgary, Alberta, T3A 5A4
- $820,000
- $820,000
- Beds: 5
- Baths: 3
- 1427.09 sqft
- Detached, Residential
4 hours ago
4 hours ago
Are you interested in 36 Chaparral Drive SE, Calgary, Alberta, T2X3J6?
For over two decades, home buyers and sellers have come to depend on us for our expertise in buying and selling their properties.
