- Home
- Residential
- Detached
- 43 Elizabeth Way SE, Airdrie, Alberta, T4B2H5
43 Elizabeth Way SE, Airdrie, Alberta, T4B2H5
Edgewater, Airdrie
- A2302234
- MLS Number
- 4
- Bedrooms
- 3
- Bathrooms
- 1193.00
- sqft
- 0.11
- Lot sqft
- 1994
- Year Built
Property Description
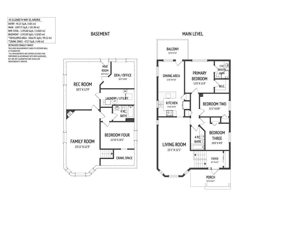
FULLY DEVELOPED WALKOUT BI-LEVEL BACKING ONTO GREEN SPACE! Welcome to 43 Elizabeth Way SE in Airdrie — a well-maintained and thoughtfully updated home offering over 2,200 sq ft of developed living space, perfectly positioned with direct access to a park and green space right out your back gate. The main level is bright and inviting, featuring vaulted ceilings and beautiful hardwood flooring in the spacious living room, enhanced by a stunning bay window that floods the space with natural light. The renovated kitchen offers rich cabinetry, granite countertops, and a functional layout that flows seamlessly into the sunny dining area — ideal for everyday living and entertaining. Upstairs you’ll find three well-sized bedrooms, including a comfortable primary retreat complete with a 3-piece ensuite and walk-in closet. The main bathroom has been tastefully updated, adding to the home’s overall appeal. The fully developed walkout basement provides exceptional additional living space with a large family room featuring a cozy gas fireplace and new LVP flooring. This level also includes a fourth bedroom, full bathroom, dedicated office, and a spacious rec room, making it ideal for growing families or those needing flexible space. Situated on a large lot, this property offers both privacy and convenience, with schools, pathways, and Nose Creek Park just minutes away. Added value comes with solar panels, helping to improve energy efficiency and reduce utility costs. Exceptionally well priced, this is a fantastic opportunity to own a move-in ready home in a family-friendly location with unbeatable access to outdoor space.
Virtual Tour
Property Details
-
Property Type Detached, Residential
-
MLS Number A2302234
-
Property Size 1193.00 sqft
-
Bedrooms 4
-
Bathrooms 3
-
Year Built 1994
-
Property Status Active
-
Parking 2
-
Brokerage name Yates Real Estate Ltd
Features & Amenities
Similar Listings
804 Lawthorn Way SE, Airdrie, Alberta, T4A3M9
- $519,500
- $519,500
- Beds: 3
- Baths: 3
- 1345.20 sqft
- Semi Detached (Half Duplex), Residential
47 minutes ago
47 minutes ago
#1503 2400 Ravenswood View SE, Airdrie, Alberta, T4A0V7
- $279,900
- $279,900
- Beds: 2
- Baths: 2
- 1134.00 sqft
- Row/Townhouse, Residential
9 hours ago
9 hours ago
209 Hillcrest Gardens SW, Airdrie, Alberta, T4B4H8
- $390,000
- $390,000
- Beds: 2
- Baths: 3
- 1330.55 sqft
- Row/Townhouse, Residential
12 hours ago
12 hours ago
#2409 604 8 Street SW, Airdrie, Alberta, T4B 2W4
- $234,900
- $234,900
- Beds: 2
- Baths: 2
- 834.00 sqft
- Apartment, Residential
21 hours ago
21 hours ago
Are you interested in 43 Elizabeth Way SE, Airdrie, Alberta, T4B2H5?
For over two decades, home buyers and sellers have come to depend on us for our expertise in buying and selling their properties.
