- Home
- Residential
- Semi Detached (Half Duplex)
- 4320 Centre A Street NE, Calgary, Alberta, T2E 3B1
4320 Centre A Street NE, Calgary, Alberta, T2E 3B1
Highland Park, Calgary
- A2295816
- MLS Number
- 4
- Bedrooms
- 4
- Bathrooms
- 2013.92
- sqft
- 0.07
- Lot sqft
- 2026
- Year Built
Property Description
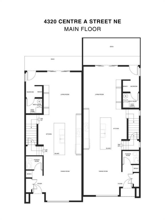
MOVE IN THIS SUMMER! PURCHASE EARLY AND CHOOSE YOUR SELECTIONS! Close to green space and countless amenities, this brand new 2-storey infill by Zenith Group offers over 2,800 sq ft of thoughtfully designed living space. Hosting 4 beds, 3.5 baths, a walk-out basement, and a double detached garage – this property is ideal for families, professionals, or investors who appreciate a blend of elegance and functionality. The exterior façade provides a distinctive curb appeal with brick & Hardie Board. Inside, the main floor offers an open-concept layout with soaring ceilings, a front dining area, and a modern kitchen with a central island, stainless steel appliances (including a gas stove), tile backsplash, and full-height cabinetry. The living room centres around a gas fireplace and provides access to an expansive rear deck, while a practical rear mudroom adds everyday functionality. A concrete walkway/staircase connects the front and rear of the home, leading to a double detached garage that adds everyday convenience and secure storage. Upstairs you’ll find 3 bedrooms, including a spacious primary retreat with a walk-in closet and a 5-piece ensuite with dual sinks, quartz counters, a soaker tub, and a fully tiled shower. Two additional bedrooms, a full bathroom, and an upper laundry with a side-by-side washer and dryer complete the level. The walk-out basement offers flexibility for a potential 1-bedroom legal suite (subject to approval) or additional living space, with 1 bedroom, a full bathroom, and extra storage. Located steps from Highland Park and near various playgrounds, this home enjoys immediate access to green space and outdoor recreation. Families benefit from multiple schools, while the nearby Highland Park Community Centre offers year-round recreation. Everyday conveniences are just minutes away, including Safeway, Save-On-Foods and Superstore. This home also offers quick access to major roadways, including Centre Street and Deerfoot Trail, making commuting to downtown and other parts of the city efficient. ATTENTION FIRST-TIME BUYERS: You could qualify for up to a 100% GST rebate on this new home! Enquire today to find out more!
Virtual Tour
Property Details
-
Property Type Semi Detached (Half Duplex), Residential
-
MLS Number A2295816
-
Property Size 2013.92 sqft
-
Bedrooms 4
-
Bathrooms 4
-
Garage 1
-
Year Built 2026
-
Property Status Active
-
Parking 2
-
Brokerage name RE/MAX House of Real Estate
Features & Amenities
- 2 Storey
- Asphalt Shingle
- Attached-Side by Side
- Balcony
- Balcony s
- BBQ gas line
- Built-in Features
- Dishwasher
- Double Garage Detached
- Double Vanity
- Dryer
- Forced Air
- Full
- Gas
- Gas Stove
- Kitchen Island
- Microwave
- Park
- Patio
- Playground
- Quartz Counters
- Range Hood
- Refrigerator
- Schools Nearby
- See Remarks
- Shopping Nearby
- Sidewalks
- Soaking Tub
- Walk-In Closet s
- Walking Bike Paths
- Washer
Similar Listings
3042 Doverville Crescent SE, Calgary, Alberta, t2b1t9
- $399,000
- $399,000
- Beds: 4
- Baths: 2
- 1067.50 sqft
- Semi Detached (Half Duplex), Residential
38 minutes ago
38 minutes ago
#1417 95 Burma Star Road SW, Calgary, Alberta, T3E 8A9
- $324,900
- $324,900
- Bed: 1
- Bath: 1
- 614.00 sqft
- Apartment, Residential
38 minutes ago
38 minutes ago
75 Copperfield Rise SE, Calgary, Alberta, T2Z 4V1
- $600,000
- $600,000
- Beds: 2
- Baths: 3
- 1551.66 sqft
- Detached, Residential
38 minutes ago
38 minutes ago
266 Cougarstone Circle SW, Calgary, Alberta, T3H 4W4
- $715,000
- $715,000
- Beds: 3
- Baths: 4
- 1479.00 sqft
- Detached, Residential
2 hours ago
2 hours ago
Are you interested in 4320 Centre A Street NE, Calgary, Alberta, T2E 3B1?
For over two decades, home buyers and sellers have come to depend on us for our expertise in buying and selling their properties.
