- Home
- Residential
- Detached
- 78 Hillcrest Street SW, Airdrie, Alberta, T4B 0Y7
78 Hillcrest Street SW, Airdrie, Alberta, T4B 0Y7
Hillcrest, Airdrie
- A2294971
- MLS Number
- 4
- Bedrooms
- 3
- Bathrooms
- 2575.00
- sqft
- 0.09
- Lot sqft
- 2011
- Year Built
Property Description
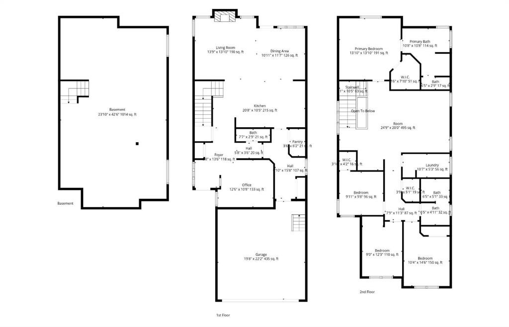
Welcome to this architectural gem in the heart of Hillcrest, one of Airdrie’s most coveted enclaves. Spanning over 2,500 square feet of meticulously designed above-grade space, this residence is a sophisticated blend of high-end luxury and the intuitive practicalities required for a vibrant, growing family. From the moment you cross the threshold, you are greeted by versatility and grandeur with an airy sense of space provided by soaring 9’ ceilings and an abundance of natural light. Tucked discreetly behind kitchen area is a versatile tech-hub or den—a tranquil sanctuary designed for the modern professional or a quiet library for the dedicated student. The transition from the garage is effortless via a spacious mudroom complete with integrated bench seating. This flows into a large walk-through pantry, ensuring grocery hauls are a breeze and your kitchen remains clutter-free. The home’s true pulse is found in the expansive, open-concept Great Room. The chef-inspired kitchen is a showpiece of both form and function, featuring: a massive granite-topped island serves as the home’s social anchor, offering seating for four and ample prep space, deep pot-and-pan drawers, tons of counter and cabinet space, richly stained cabinetry, and premium finishes. Adjacent to the kitchen area, is the living room and dining area invites you to unwind beside a striking stone-surround gas fireplace, providing a warm for cozy winter evenings. Ascend the staircase to a floor plan that prioritizes both privacy and togetherness. The master suite is a serene sanctuary designed for ultimate rejuvenation. It features a spa-inspired 5-piece ensuite—a tranquil escape boasting dual vanities, a deep soaker tub and a separate glass-enclosed shower. The walk-in closet offers a custom-level feel for your entire wardrobe. Three additional generously sized bedrooms ensure that every family member has a private while the centrally located bonus room acts as a versatile loft—perfect for cinematic movie nights. The fully unfinished basement presents a pristine “blank canvas,” offering you the rare opportunity to customize your future dream space. The transition from the interior to the outdoors is nothing short of spectacular. The 2 decks offer entertaining space and on the lower level is the outdoor hot tub, whether it’s a crisp autumn evening or a snowy winter night, this is your personal spa oasis. Outside, you are mere steps from the community’s vibrant tapestry of manicured parks, prestigious schools, and boutique shopping. With immediate access to Highway 2, your commute to Calgary is seamless, while your home remains a peaceful retreat from the hustle. This isn’t just a house; it’s the backdrop for your family’s next great chapter.
Virtual Tour
Property Details
-
Property Type Detached, Residential
-
MLS Number A2294971
-
Property Size 2575.00 sqft
-
Bedrooms 4
-
Bathrooms 3
-
Garage 1
-
Year Built 2011
-
Property Status Active
-
Parking 4
-
Brokerage name Real Estate Professionals Inc.
Features & Amenities
- 2 Storey
- Asphalt Shingle
- Deck
- Dishwasher
- Double Garage Attached
- Double Vanity
- Driveway
- Electric Stove
- Forced Air
- Full
- Garage Control s
- Gas
- Granite Counters
- Living Room
- Microwave
- Open Floorplan
- Other
- Pantry
- Park
- Playground
- Private Yard
- Refrigerator
- Schools Nearby
- Shopping Nearby
- Sidewalks
- Soaking Tub
- Street Lights
- Walk-In Closet s
- Walking Bike Paths
Similar Listings
#602 800 Yankee Valley Boulevard SE, Airdrie, Alberta, T4A 2L3
- $419,900
- $419,900
- Beds: 3
- Baths: 3
- 1428.00 sqft
- Row/Townhouse, Residential
26 minutes ago
26 minutes ago
#4102 2781 Chinook Winds Drive SW, Airdrie, Alberta, T4B 3S5
- $272,000
- $272,000
- Beds: 2
- Bath: 1
- 811.00 sqft
- Row/Townhouse, Residential
26 minutes ago
26 minutes ago
217 coopers Grove SW, Airdrie, Alberta, T2B0G4
- $725,000
- $725,000
- Beds: 5
- Baths: 4
- 2311.50 sqft
- Detached, Residential
19 hours ago
19 hours ago
194 Baneberry Way SW, Airdrie, Alberta, T4B 5M2
- $799,000
- $799,000
- Beds: 5
- Baths: 3
- 2537.00 sqft
- Detached, Residential
2 days ago
2 days ago
Are you interested in 78 Hillcrest Street SW, Airdrie, Alberta, T4B 0Y7?
For over two decades, home buyers and sellers have come to depend on us for our expertise in buying and selling their properties.
