- Home
- Residential
- Detached
- 90 Walden Crescent SE, Calgary, Alberta, T2X 0S9
90 Walden Crescent SE, Calgary, Alberta, T2X 0S9
Walden, Calgary
- A2279477
- MLS Number
- 4
- Bedrooms
- 4
- Bathrooms
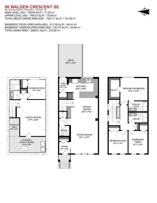
- 1523.17
- sqft
- 0.07
- Lot sqft
- 2012
- Year Built
Property Description
CHECK THIS ONE OUT! | JAYMAN BUILT | 4 BEDROOMS | FINISHED BASEMENT | 3.5 BATHS | AIR CONDITIONED | 2288+ SQ FT OF LIVING SPACE
This almost brand-new home—a best-selling model custom-built by the original owners—offers timeless style, modern upgrades, and a highly functional layout for today’s busy families.
Set on a traditional lot (not zero-lot line) and located on a family-friendly street just steps away from ponds, parks, ice rink, pathways, schools, and shopping, this home delivers both comfort and convenience.
The open-concept main floor impresses with 9-ft ceilings, luxury hardwood flooring, and an abundance of natural light. A chef’s kitchen anchors the space, featuring ample counter space, shaker-style maple cabinetry with wine shelving, extended trim, stainless steel appliances, including an electric cooktop, recessed lighting, a large peninsula island with a flush eating bar, a mudroom pantry, and a spacious dining area. The layout also includes a main floor family room with west-facing extra-tall windows. A rear mudroom adds storage and direct access to the oversized east-facing fenced yard, two parking stalls, paved back lane way, 2 sheds and a 16 x 11 deck.
Upstairs, the luxurious primary suite offers a full 4-piece ensuite and a massive walk-in closet. Two additional bedrooms, a full bathroom, and a convenient linen closet complete this level.
The professionally finished basement provides additional living space with a large family room, a 4th bedroom, a full bathroom, storage, and a full-sized laundry room.
Additional highlights include:
• Central A/C
• Designer lighting, upgraded plumbing fixtures & electrical finishes
• Generously sized bedrooms with large windows for natural light
With a quick 2026 possession date, this home is move-in ready and checks all the boxes for families, professionals, or investors alike.
Don’t miss out—call your friendly REALTOR® today to book your private showing!
Virtual Tour
Property Details
-
Property Type Detached, Residential
-
MLS Number A2279477
-
Property Size 1523.17 sqft
-
Bedrooms 4
-
Bathrooms 4
-
Year Built 2012
-
Property Status Active
-
Parking 2
-
Brokerage name Jayman Realty Inc.
Features & Amenities
- 2 Storey
- Alley Access
- Asphalt Shingle
- Central
- Central Air
- Central Air Conditioner
- Chandelier
- Closet Organizers
- Deck
- Dishwasher
- Electric Cooktop
- Exhaust Fan
- Forced Air
- Front Porch
- Full
- High Ceilings
- High Efficiency
- Kitchen Island
- Laminate Counters
- Lighting
- Microwave
- Natural Gas
- Open Floorplan
- Other
- Pantry
- Park
- Pergola
- Playground
- Pool
- Private Yard
- Rain Gutters
- Range Hood
- Recessed Lighting
- Refrigerator
- Schools Nearby
- Shopping Nearby
- Sidewalks
- Soaking Tub
- Stall
- Storage
- Street Lights
- Vinyl Windows
- Walk-In Closet s
- Washer Dryer
Similar Listings
14 Evansfield Green NW, Calgary, Alberta, T3P 1J9
- $829,900
- $829,900
- Beds: 5
- Baths: 4
- 2134.00 sqft
- Detached, Residential
16 minutes ago
16 minutes ago
5407 Dalrymple Crescent NW, Calgary, Alberta, T3A 1R2
- $665,000
- $665,000
- Beds: 4
- Baths: 2
- 924.18 sqft
- Semi Detached (Half Duplex), Residential
16 minutes ago
16 minutes ago
8549 Huxbury Drive NE, Calgary, Alberta, T2A 4Y1
- $549,800
- $549,800
- Beds: 4
- Baths: 3
- 1771.42 sqft
- Semi Detached (Half Duplex), Residential
16 minutes ago
16 minutes ago
9060 52 Street NE, Calgary, Alberta, T3J 0V7
- $574,999
- $574,999
- Beds: 4
- Baths: 4
- 1312.17 sqft
- Semi Detached (Half Duplex), Residential
1 hour ago
1 hour ago
Are you interested in 90 Walden Crescent SE, Calgary, Alberta, T2X 0S9?
For over two decades, home buyers and sellers have come to depend on us for our expertise in buying and selling their properties.
