- Home
- Residential
- Detached
- 182 Sunset Heights, Cochrane, Alberta, T4C 0C9
182 Sunset Heights, Cochrane, Alberta, T4C 0C9
Sunset Ridge, Cochrane
- A2262876
- MLS Number
- 4
- Bedrooms
- 4
- Bathrooms
- 1332.90
- sqft
- 0.10
- Lot sqft
- 2007
- Year Built
Property Description
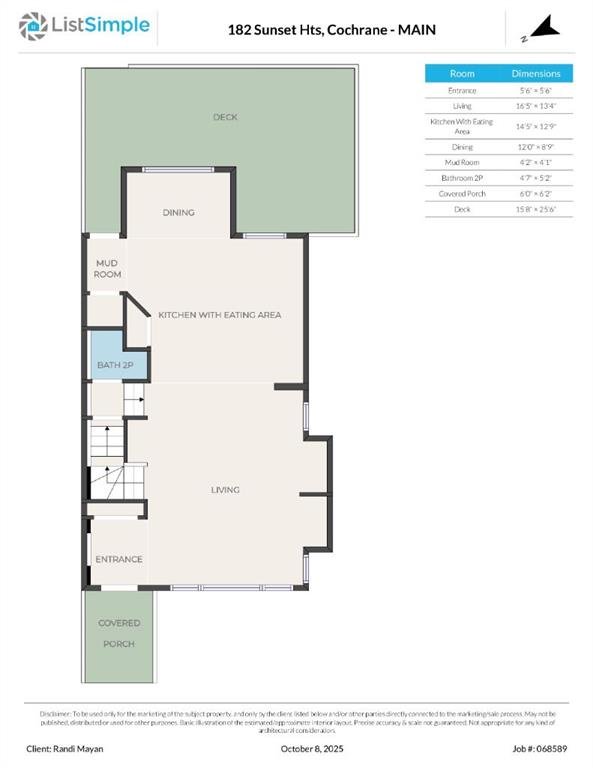
Nestled in the heart of Sunset Ridge this extensively renovated and upgraded home is a true gem! With over $100,000 in upgrades this home is as unique as the lot it sits on. The HUGE 21′ x 35′ HEATED fully finished triple car garage features a custom painted floor and three overhead doors, two leading to the lane in the back and one into the backyard. All permits were completed for the 16′ extension to the garage. Inside you will find a great open concept layout on the main floor. Featuring a brand new kitchen, renovations completed in 2025 featuring all new SS appliances, gorgeous quartz countertops, tile back splash, new shaker style cabinets with brass hardware, large waterfall kitchen island perfect for entertaining and custom coffee bar with with more storage space in the built in cabinets below. No details were overlooked and no expense was spared! The popcorn ceilings are no more with scraped knock down ceilings. The main floor half bath was also renovated with new vanity, toilet and floating shelves. The living room features a cozy gas fireplace and plenty of windows to let the natural light enhance the warm hardwood floors. Outside in the large back yard the deck was extended the length of the house with composite decking and glass railing, perfect for those summer time BBQ’s with the whole family. Upstairs you will find upgraded flooring throughout, 2 spacious bedrooms and the primary retreat large enough for a king bed, walk in closet and 4 piece ensuite. The basement was completed with all permits 7 years ago with cozy family room, 4th bedroom, 3 pc bathroom and plenty of storage. Perfect for guests or in law suite! The laundry room is also in the basement with brand new washer and dryer pair. The HWT was just replaced in 2021, the furnace is original and runs great with regular servicing and cleaning. It was last serviced in the summer of 2025. Sunset Ridge is home to kms of walking paths, Ranchview K-8 School, St. Timothy High School, shops, restaurants and gas bar with quick access to the Mountains or into town with the overpass construction almost at completion. Book a showing today and don’t miss out on this unique one of a kind property.
Virtual Tour
Property Details
-
Property Type Detached, Residential
-
MLS Number A2262876
-
Property Size 1332.90 sqft
-
Bedrooms 4
-
Bathrooms 4
-
Garage 1
-
Year Built 2007
-
Property Status Active
-
Parking 3
-
Brokerage name CIR Realty
Features & Amenities
- 2 Storey
- Asphalt Shingle
- Built-in Features
- Central Air
- Closet Organizers
- Deck
- Dishwasher
- Double Garage Detached
- Forced Air
- Full
- Gas
- Kitchen Island
- Microwave Hood Fan
- Natural Gas
- No Smoking Home
- Oven
- Park
- Playground
- Private Yard
- Quartz Counters
- Recessed Lighting
- Refrigerator
- Schools Nearby
- Shopping Nearby
- Sidewalks
- Street Lights
- Walking Bike Paths
- Washer Dryer
Similar Listings
104 Southborough Common, Cochrane, Alberta, T4C2P5
- $755,900
- $755,900
- Beds: 3
- Baths: 3
- 2077.64 sqft
- Detached, Residential
1 day ago
1 day ago
52 Mill Road, Cochrane, Alberta, T4C 3G7
- $525,000
- $525,000
- Beds: 3
- Baths: 2
- 1419.00 sqft
- Semi Detached (Half Duplex), Residential
2 days ago
2 days ago
7 Heritage Heath, Cochrane, Alberta, T4C 3K8
- $479,900
- $479,900
- Beds: 3
- Baths: 3
- 1347.60 sqft
- Semi Detached (Half Duplex), Residential
2 days ago
2 days ago
156 Southborough Common, Cochrane, Alberta, T4C 3J6
- $689,900
- $689,900
- Beds: 3
- Baths: 3
- 2053.77 sqft
- Detached, Residential
2 days ago
2 days ago
Are you interested in 182 Sunset Heights, Cochrane, Alberta, T4C 0C9?
For over two decades, home buyers and sellers have come to depend on us for our expertise in buying and selling their properties.
