- Home
- Residential
- Detached
- 184 Sunmeadows Crescent SE, Calgary, Alberta, T2X 3H1
184 Sunmeadows Crescent SE, Calgary, Alberta, T2X 3H1
Sundance, Calgary
- A2298313
- MLS Number
- 4
- Bedrooms
- 4
- Bathrooms
- 1215.00
- sqft
- 0.11
- Lot sqft
- 1992
- Year Built
Property Description
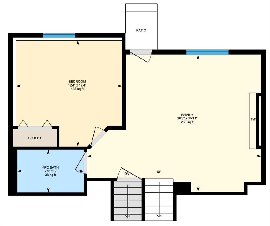
Welcome to this well maintained 4 level split located in the highly sought-after lake community of Sundance. Situated on a quiet street, this spacious home offers 4 bedrooms and 3 bathrooms, making it ideal for growing families. Built in 1993, this home has been lovingly cared for over the years, with numerous important updates already completed. The poly B plumbing has been removed, and major mechanical upgrades include a new furnace (2025) and hot water tank (2019). All windows have been replaced within the last 10 years, along with updated appliances including the stove (2020), fridge (2021), dryer (2022), washer (2024), and dishwasher (2025). Outside, enjoy a newer cedar fence (2019) and a cedar side deck (2020) perfect for summer BBQs. The main floor features durable laminate flooring throughout and offers a bright, functional layout with a spacious living room, dining area, and kitchen complete with pantry and direct access to the deck. Upstairs, you’ll find two generously sized bedrooms, a full 4 piece bathroom, and a primary bedroom with its own 3 piece ensuite. The lower level boasts a large and inviting family room centered around a cozy wood burning fireplace, along with an additional bedroom and another full 4 piece bathroom, ideal for guests or teens. The basement remains undeveloped, providing a great opportunity to customize the space to suit your needs, with ample room for storage. Additional highlights include an insulated double attached garage and a large, fully fenced backyard with back lane access, offering both privacy and potential. This is a fantastic opportunity to own a solid, well kept home in an established community close to all levels of schools: Sundance School (K–6) – Early French Immersion, Fish Creek School (K–6), Midsun Junior High(7-9), Father James Whelihan School (K–9), Centennial High School (10–12), parks, Sikome Lake, Bow Valley Ranch, Fish Creek and enjoy the lake amenities.
Virtual Tour
Property Details
-
Property Type Detached, Residential
-
MLS Number A2298313
-
Property Size 1215.00 sqft
-
Bedrooms 4
-
Bathrooms 4
-
Garage 1
-
Year Built 1992
-
Property Status Active
-
Parking 4
-
Brokerage name Century 21 Masters
Features & Amenities
- 4 Level Split
- Asphalt Shingle
- Brick Facing
- Built-in Features
- Clubhouse
- Concrete Driveway
- Dishwasher
- Double Garage Attached
- Driveway
- Dryer
- Electric Stove
- Forced Air
- Front Drive
- Full
- Garage Door Opener
- Garage Faces Front
- Garden
- Gas Starter
- High Ceilings
- Insulated
- Kitchen Island
- Lake
- Living Room
- Microwave
- Natural Gas
- Natural Woodwork
- No Animal Home
- No Smoking Home
- Pantry
- Park
- Playground
- Private Entrance
- Private Yard
- Rain Gutters
- Range Hood
- Refrigerator
- Schools Nearby
- Shopping Nearby
- Side by Side
- Side Porch
- Sidewalks
- Storage
- Street Lights
- Track Lighting
- Vaulted Ceiling s
- Walking Bike Paths
- Washer
- Window Coverings
- Wood Burning
Similar Listings
815 120 Avenue SE, Calgary, Alberta, T2J 2K5
- $1,189,000
- $1,189,000
- Beds: 4
- Baths: 3
- 1301.08 sqft
- Detached, Residential
14 minutes ago
14 minutes ago
#120 20 Discovery Ridge Close SW, Calgary, Alberta, T3H 5X4
- $450,000
- $450,000
- Beds: 2
- Baths: 2
- 1028.91 sqft
- Apartment, Residential
14 minutes ago
14 minutes ago
450 Seton Circle SE, Calgary, Alberta, T3M 3H1
- $420,000
- $420,000
- Beds: 2
- Baths: 3
- 1532.38 sqft
- Row/Townhouse, Residential
16 minutes ago
16 minutes ago
639 19 Avenue NW, Calgary, Alberta, T2M0Y9
- $960,000
- $960,000
- Beds: 4
- Baths: 4
- 1978.23 sqft
- Semi Detached (Half Duplex), Residential
16 minutes ago
16 minutes ago
Are you interested in 184 Sunmeadows Crescent SE, Calgary, Alberta, T2X 3H1?
For over two decades, home buyers and sellers have come to depend on us for our expertise in buying and selling their properties.
