- Home
- Residential
- Detached
- 70 Tuscany Glen Way NW, Calgary, Alberta, T3L 2V9
70 Tuscany Glen Way NW, Calgary, Alberta, T3L 2V9
Tuscany, Calgary
- A2291763
- MLS Number
- 4
- Bedrooms
- 4
- Bathrooms
- 2460.00
- sqft
- 0.11
- Lot sqft
- 2005
- Year Built
Property Description
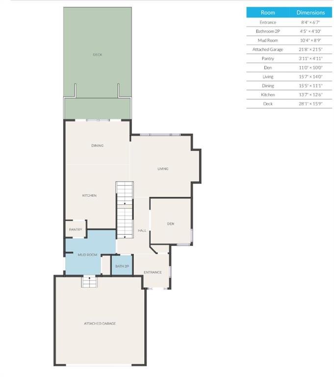
A RARE OFFERING in one of NW Calgary’s most desirable communities—don’t miss your opportunity to view this home in HILLSIDE ESTATES of Tuscany. Experience estate style living in a beautifully crafted ALBI-BUILT home perfectly situated on a QUIET street and meticulously maintained throughout. Offering over 3300 sq.ft. of thoughtfully designed living space, this home seamlessly blends elegance, functionality, and modern comfort.
Step inside to a welcoming spacious layout ideal for both Family living and entertaining. A perfectly placed front OFFICE provides a work-from-home space, while the living room, including a gas fireplace with brick surround, flows effortlessly into the heart of the home. The kitchen features granite countertops, UPDATED stainless steel Bosch & LG appliances, floor to ceiling cabinets, built in wine rack and a convenient appliance garage. A large center island offers ample storage and plenty of space for meal prep and casual gatherings.
The WALK-THROUGH PANTRY leads to a functional mudroom with BUILT-IN storage and DIRECT ACCESS to both the back yard and garage. The OVERSIZED, sun filled dining area opens onto a PRIVATE, mature landscaped yard with a two-tiered deck–ideal for your morning coffee or entertaining in the summer evenings.
Upstairs, you’ll find three GENEROUSLY SIZED BEDROOMS, including a LUXURIOUS primary retreat. The spa inspired 5-piece ensuite features DUAL VANITIES, an OVERSIZED tiled glass shower, a soaker tub, and VAULTED CEILINGS leading into a spacious walk-in closet. Completing the upper level is a bright VAULTED BONUS ROOM with mountain views, a four-piece bathroom and a large laundry room with sink.
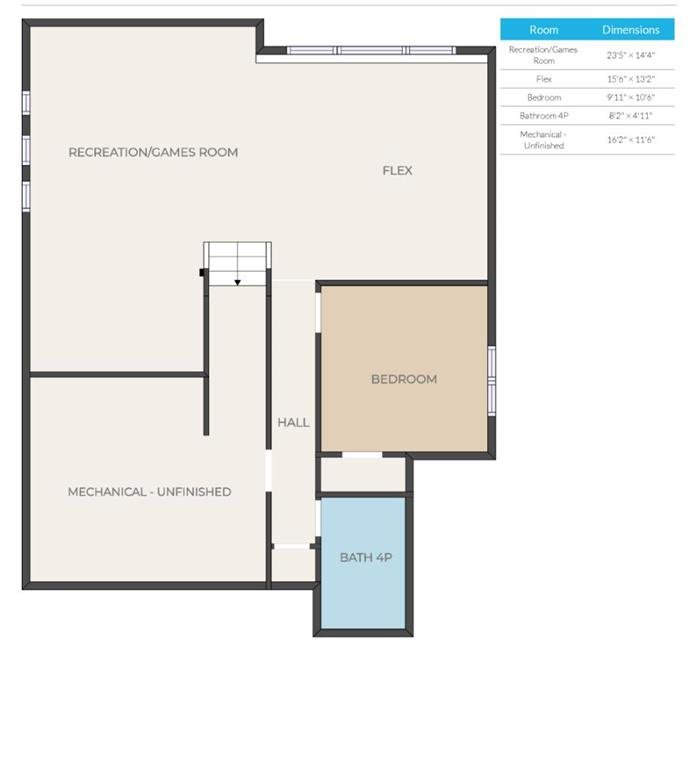
The fully developed basement adds even more living space, featuring a cozy gas fireplace, a fourth bedroom perfect for guests, an additional four-piece bathroom.
Appreciate the WALKABLE LOCATION close to schools, Stoney Trail, QUICK MOUNTAIN ACCESS and all amenities Tuscany has to offer. This is a ONE-OF-A-KIND OPPORTUNITY to own a home of exceptional value in the heart of Tuscany —- Welcome home!
Virtual Tour
Property Details
-
Property Type Detached, Residential
-
MLS Number A2291763
-
Property Size 2460.00 sqft
-
Bedrooms 4
-
Bathrooms 4
-
Garage 1
-
Year Built 2005
-
Property Status Active
-
Parking 4
-
Brokerage name CIR Realty
Features & Amenities
- 2 Storey
- Asphalt Shingle
- BBQ gas line
- Built-in Features
- Ceiling Fan s
- Central Air
- Central Air Conditioner
- Closet Organizers
- Clubhouse
- Deck
- Dishwasher
- Double Garage Attached
- Double Vanity
- Dryer
- Forced Air
- Full
- Garage Control s
- Gas
- Gas Cooktop
- Granite Counters
- Jetted Tub
- Kitchen Island
- Microwave
- Microwave Hood Fan
- No Smoking Home
- Open Floorplan
- Oven
- Pantry
- Park
- Playground
- Refrigerator
- Schools Nearby
- Shopping Nearby
- Skylight s
- Tennis Court s
- Vinyl Windows
- Walk-In Closet s
- Walking Bike Paths
- Washer
- Window Coverings
Similar Listings
98 Panatella Hill NW, Calgary, Alberta, T3K 0B6
- $510,000
- $510,000
- Beds: 2
- Baths: 3
- 1106.00 sqft
- Semi Detached (Half Duplex), Residential
13 minutes ago
13 minutes ago
#2305 81 Legacy Boulevard SE, Calgary, Alberta, T2X 2B9
- $250,000
- $250,000
- Beds: 2
- Baths: 2
- 695.97 sqft
- Apartment, Residential
13 minutes ago
13 minutes ago
317 Creekside Drive SW, Calgary, Alberta, T2X6L1
- $530,500
- $530,500
- Beds: 3
- Baths: 3
- 1623.80 sqft
- Semi Detached (Half Duplex), Residential
13 minutes ago
13 minutes ago
15 Cranberry Square SE, Calgary, Alberta, T3M 1J4
- $515,000
- $515,000
- Beds: 4
- Baths: 2
- 924.56 sqft
- Detached, Residential
13 minutes ago
13 minutes ago
Are you interested in 70 Tuscany Glen Way NW, Calgary, Alberta, T3L 2V9?
For over two decades, home buyers and sellers have come to depend on us for our expertise in buying and selling their properties.
